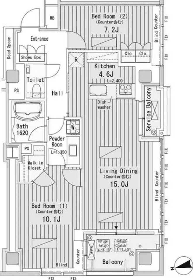
Welcome to unit 1906 at Park Axis Onarimon, a stunning 2LDK condo that offers a perfect blend of comfort and functionality. Spanning 82.07 square meters on the 19th floor, this space is designed to enhance your daily life. The modern system kitchen, complete with a dishwasher and reheating function, invites culinary creativity, while the spacious living area provides a warm atmosphere for relaxation. Enjoy the convenience of an indoor washing machine space and a separate washbasin, ensuring your routines are seamless. Step out onto your private balcony to savor the views, and experience the luxury of floor heating and air conditioning throughout. With amenities like a concierge service and auto-lock security, your comfort and peace of mind are prioritized. Located just a short walk from Onarimon Station, Shimbashi Station, and Toranomon Hills Station, commuting is effortless, placing you at the heart of the city’s vibrant life. Discover the ideal urban retreat in this exquisite a...
Listed by Tokyo Portfolio • Acting as intermediary
Listing updated: 2026-02-05
Around This Property
Onarimon
4 min walk
- Mita
Shimbashi
10 min walk
Yamanote
Floor Plans & Monthly Fees

¥510,000
Priceper month
Including management fee (¥0)¥0
•
Insurance (¥0)
2
Beds
1
Baths
82.07
m²
*This is just a guide and may not accurately reflect what the total upfront fees will be. Some management companies will have other unique fees not accounted for here. We will always explain the full breakdown of upfront costs.
**If you have pets and this is a pet friendly property, expect to pay at least one additional month in security deposit.

This property is listed by Tokyo Portfolio.
Phone: +81 (0)3-5447-8700
Address: 5-15-12 Minami-azabu, Minato-ku, Tokyo
License number: Governor of Tokyo License (1) No. 107013 / Member of the Ibaraki Prefecture Chapter of the All Japan Real Estate Association / Member of the Tokyo Metropolitan Area Real Estate Fair Trading Council










