

Elevate your lifestyle at Park Cube Nemiya-yama Tower, a modern high-rise residence combining contemporary design with urban convenience. The apartment features spacious living areas, sunlit interiors, and a sleek, functional kitchen, creating an inviting environment for both relaxation and entertaining. Set in the tranquil Nemiya-yama neighborhood, residents enjoy a perfect balance of calm residential charm and city accessibility. Tree-lined streets, boutique shops, and cozy cafés provide a refined yet vibrant atmosphere. Ideal for professionals and small families, this residence offers comfort, style, and connectivity, capturing the essence of sophisticated Tokyo living in a prime location.
Listed by Tokyo Portfolio • Acting as intermediary
Listing updated: 2026-01-15
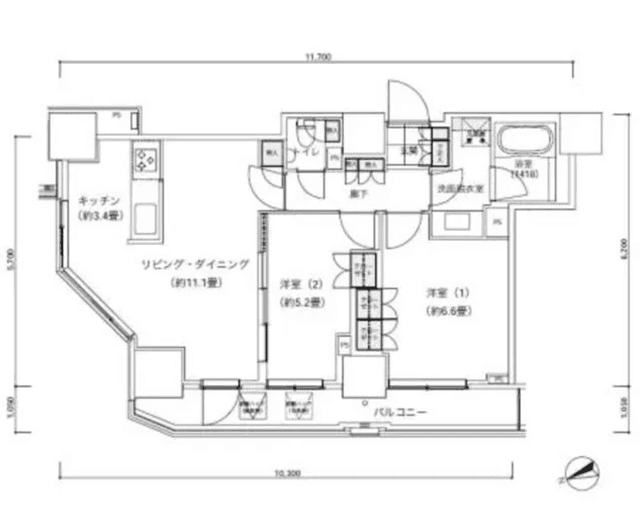
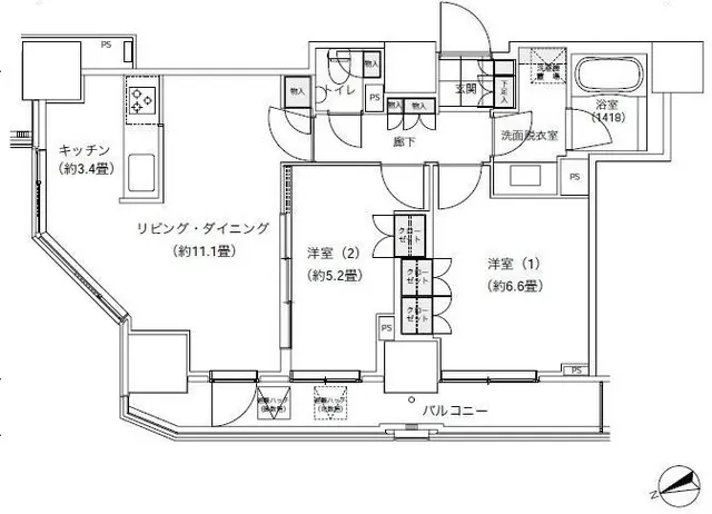
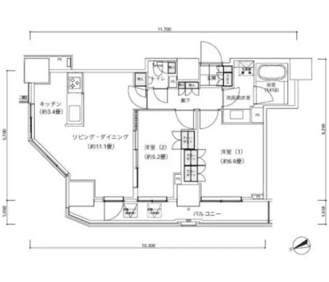
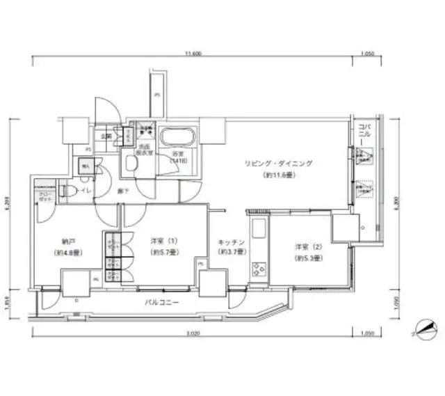
Available Units
Around This Property
Onarimon
6 min walk
- Mita
Kamiyacho
7 min walk
- Hibiya
This property is listed by Tokyo Portfolio.
Phone: +81 (0)3-5447-8700
Address: 5-15-12 Minami-azabu, Minato-ku, Tokyo
License number: Governor of Tokyo License (1) No. 107013 / Member of the Ibaraki Prefecture Chapter of the All Japan Real Estate Association / Member of the Tokyo Metropolitan Area Real Estate Fair Trading Council




















