











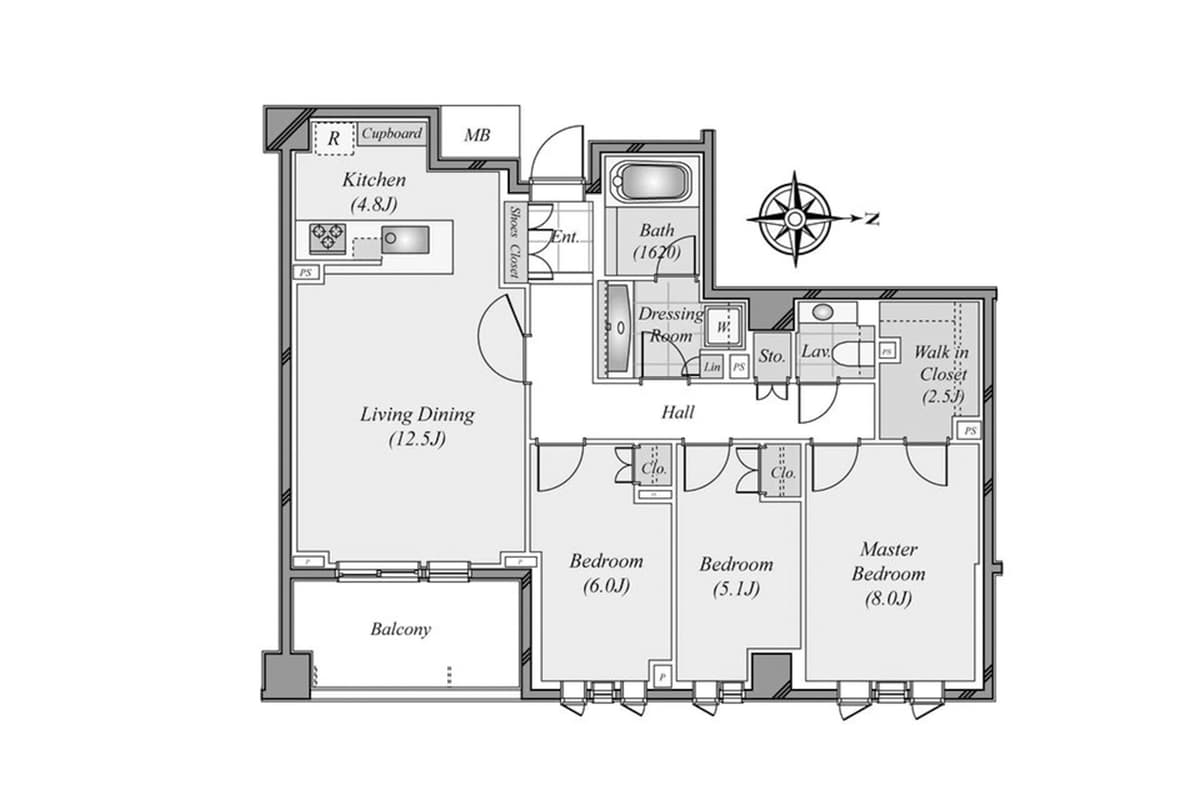
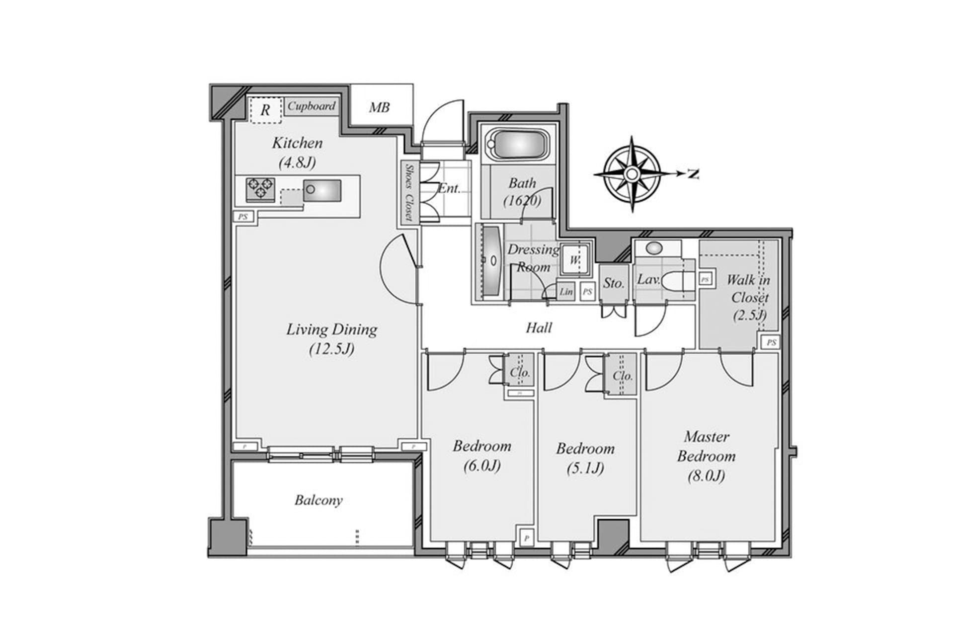
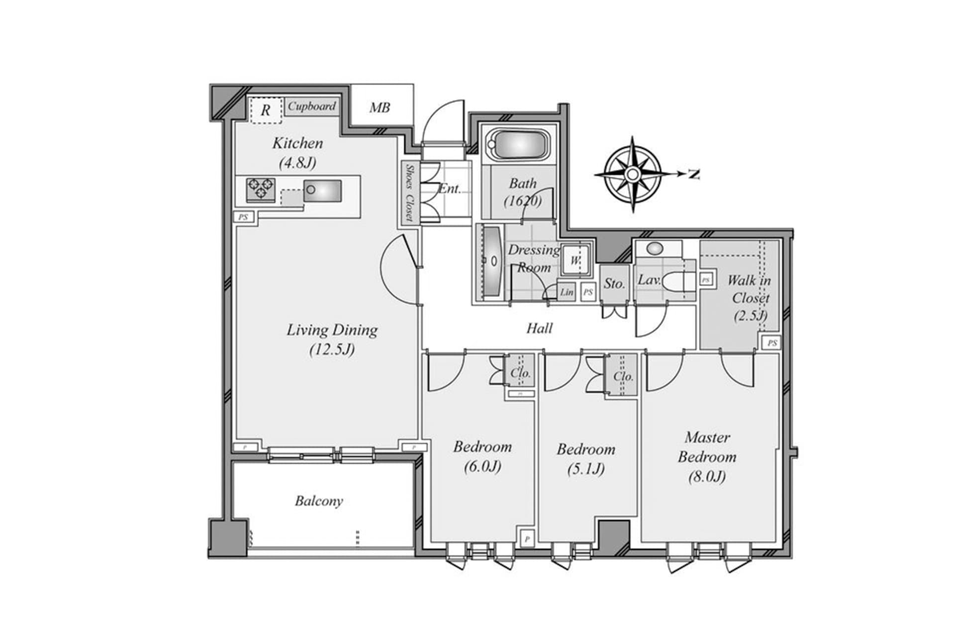
Perched in the vibrant heart of Shibuya, Park Court Shibuya Ohyamacho The Purane Sei-tei presents a sophisticated 3LDK layout across 86.75㎡, blending modern convenience with understated elegance. Sunlight warms the open living space, complemented by floor heating, a fully equipped kitchen with a dishwasher, disposer, and water purifier, and a spacious walk-in closet for seamless organization. Security features including auto-lock and parcel boxes ensure peace of mind, while thoughtful design balances style and functionality. Set in Shibuya’s Ohyamacho district, residents enjoy proximity to boutique shopping, gourmet dining, and dynamic cultural spots. The neighborhood’s blend of energy and refinement suits professionals, creatives, and families seeking a cosmopolitan lifestyle with convenience and character.
Listed by Tokyo Portfolio • Acting as intermediary
Listing updated: 2025-09-04
Around This Property
Yoyogi-Uehara
9 min walk
- Odawara
Yoyogi-uehara
9 min walk
- Chiyoda
Floor Plans & Monthly Fees

¥520,000
Priceper month
Including management fee (-)¥0
•
Insurance (¥0)
3
Beds
1
Baths
86.75
m²

This property is listed by Tokyo Portfolio.
Phone: +81 (0)3-5447-8700
Address: 5-15-12 Minami-azabu, Minato-ku, Tokyo
License number: Governor of Tokyo License (1) No. 107013 / Member of the Ibaraki Prefecture Chapter of the All Japan Real Estate Association / Member of the Tokyo Metropolitan Area Real Estate Fair Trading Council





















