Welcome to Park Flats Shibuya Kamiyachou, a modern condominium completed in 2018. This nine-story building features a sleek architectural design that harmonizes with the vibrant atmosphere of Shibuya. With 33 thoughtfully designed units, residents enjoy a sense of community while benefiting from contemporary amenities, including a reliable elevator, 24-hour security, and ample parking options for cars, bikes, and motorcycles. Nestled in the heart of Shibuya, the neighborhood is known for its dynamic lifestyle, offering an array of shops, cafes, and cultural attractions. This area appeals to young professionals and families alike, providing easy access to the energetic pulse of Tokyo while maintaining a welcoming residential charm.
Listed by Tokyo Portfolio • Acting as intermediary
Listing updated: 2026-02-18
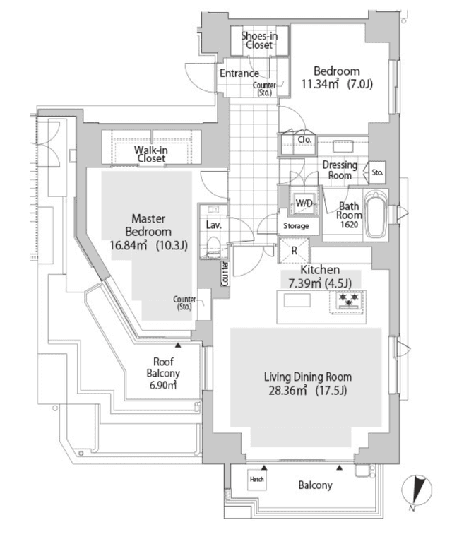
Available Units
Around This Property
Shibuya
10 min walk
- Saikyo
- Inokashira
- Hanzomon
- Toyoko
Yoyogi-koen
7 min walk
- Chiyoda
This property is listed by Tokyo Portfolio.
Phone: +81 (0)3-5447-8700
Address: 5-15-12 Minami-azabu, Minato-ku, Tokyo
License number: Governor of Tokyo License (1) No. 107013 / Member of the Ibaraki Prefecture Chapter of the All Japan Real Estate Association / Member of the Tokyo Metropolitan Area Real Estate Fair Trading Council

