












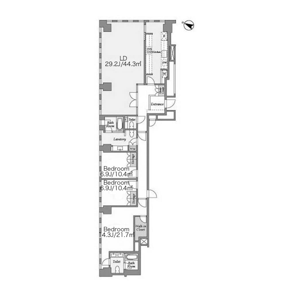
Discover refined living at Prudential Tower Residences, a sprawling 164.43㎡ 3LDK unit near Akasaka. Positioned on a high floor, this elegant home boasts sweeping views from every room, creating a serene backdrop for urban life. Designed with comfort in mind, the residence offers ample space for families and professionals, with pet-friendly policies and top-tier security ensuring peace of mind. Nestled in the heart of Akasaka, this sought-after neighborhood is renowned for its vibrant dining, cultural attractions, and proximity to key business districts. Ideal for those seeking a blend of luxury, convenience, and tranquility, this property offers an unmatched lifestyle opportunity.
Listed by Tokyo Portfolio • Acting as intermediary
Listing updated: 2025-01-30
Around This Property
Akasaka-mitsuke
1 min walk
- Ginza
Floor Plans & Monthly Fees

¥1,021,000
Priceper month
Including management fee (-)¥0
•
Insurance (¥0)
3
Beds
2
Baths
164.43
m²

This property is listed by Tokyo Portfolio.
Phone: +81 (0)3-5447-8700
Address: 5-15-12 Minami-azabu, Minato-ku, Tokyo
License number: Governor of Tokyo License (1) No. 107013 / Member of the Ibaraki Prefecture Chapter of the All Japan Real Estate Association / Member of the Tokyo Metropolitan Area Real Estate Fair Trading Council




















