








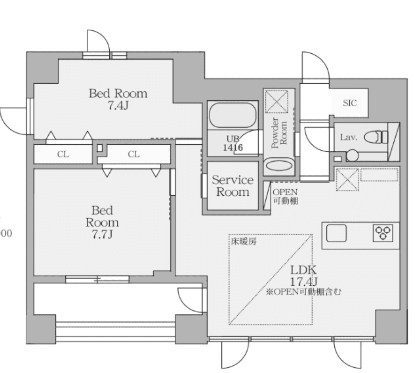
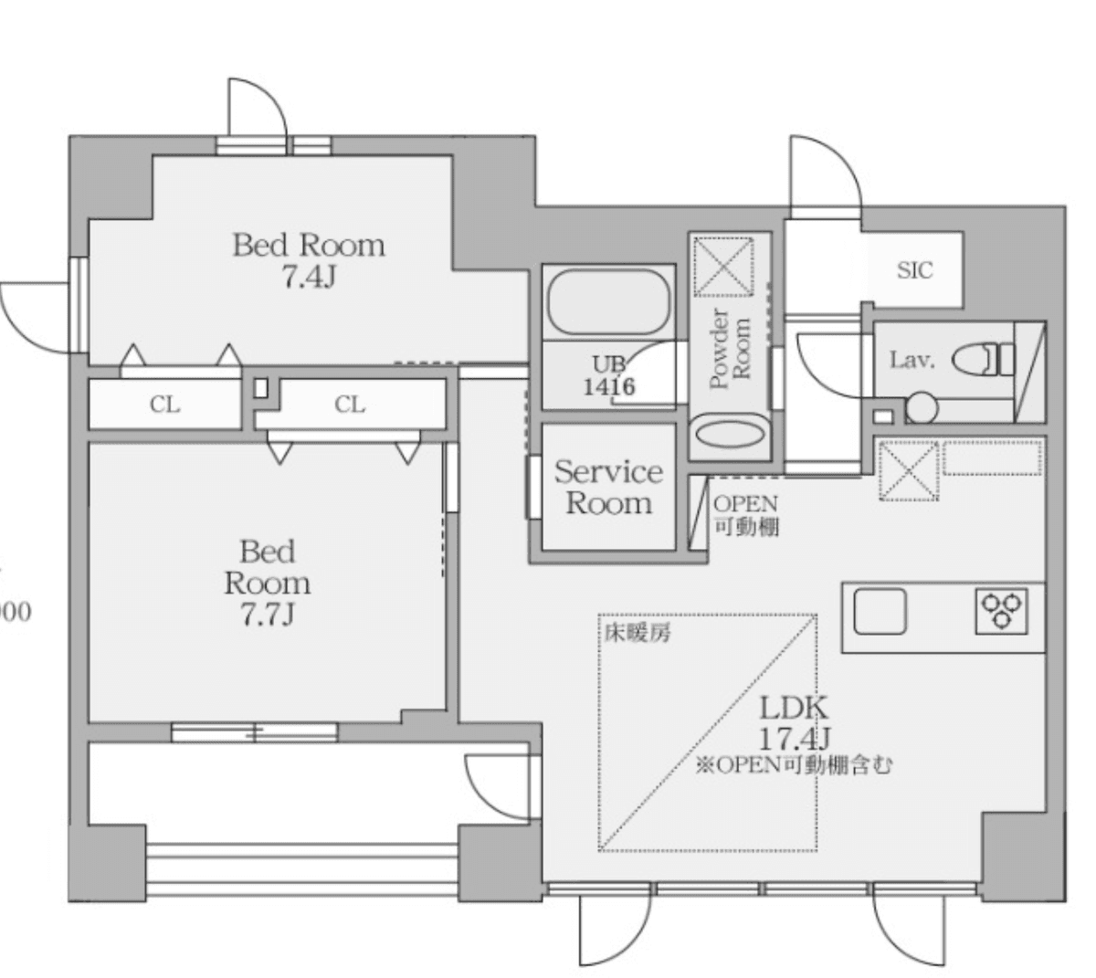
Resting on the 2nd floor of SELENE Gotenyama, this south-facing 2SLDK residence spans 71.66m², offering a warm and gently illuminated living environment. The spacious living–dining area forms a serene centerpiece, enhanced by soft daylight and a layout designed for comfort and ease. A versatile study room adds valuable flexibility for remote work, hobbies, or organized storage. Thoughtful design details elevate everyday living, from the streamlined kitchen to two well-proportioned bedrooms and a calm, refined bathroom. The home’s flow feels balanced and intuitive, making both quiet mornings and relaxed evenings effortless. Set in the distinguished Gotenyama neighborhood, the area is known for its tree-lined promenades, historic estates, and embassies that lend a timeless elegance. With charming cafés, peaceful gardens, and excellent access to transportation, it’s ideal for professionals, couples, and small families seeking tranquility wrapped in central Tokyo convenience.
Listed by Tokyo Portfolio • Acting as intermediary
Listing updated: 2025-12-08
Around This Property
Osaki
5 min walk
Yamanote- ShonanShinjuku
- Saikyo Kawagoe
- Rinkai
Kitashinagawa
15 min walk
- Main
Floor Plans & Monthly Fees

¥367,000
Priceper month
Including management fee (-)¥0
•
Insurance (¥0)
2
Beds
1
Baths
71.66
m²

More Units in This Building

SELENE Gotenyama
2025
Built
7
Units on sale
This property is listed by Tokyo Portfolio.
Phone: +81 (0)3-5447-8700
Address: 5-15-12 Minami-azabu, Minato-ku, Tokyo
License number: Governor of Tokyo License (1) No. 107013 / Member of the Ibaraki Prefecture Chapter of the All Japan Real Estate Association / Member of the Tokyo Metropolitan Area Real Estate Fair Trading Council
































