








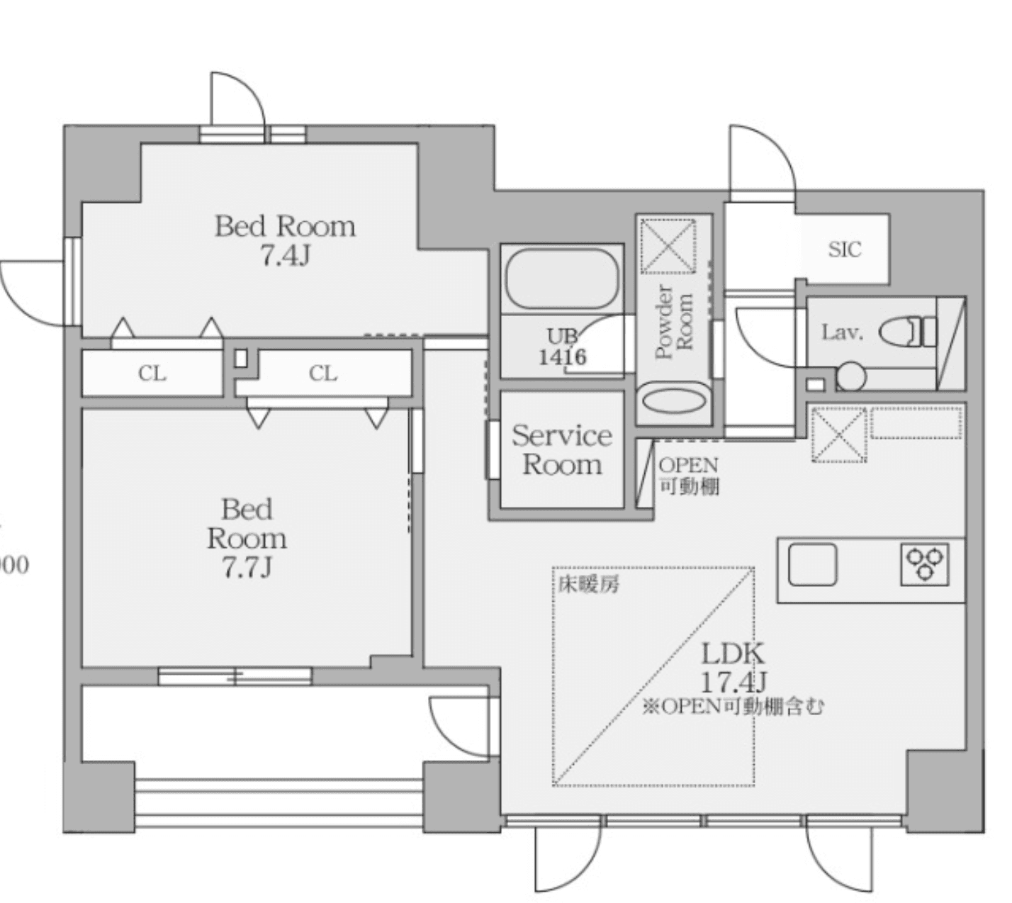
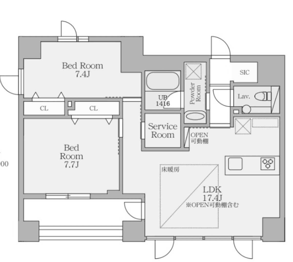
On the 6th floor of SELENE Gotenyama, this refined 2SLDK home spans 71.66m², offering a calm, intelligently designed layout ideal for both daily comfort and quiet productivity. Soft natural light fills the living and dining area, while the flexible study room adds valuable versatility for work, hobbies, or storage. Every detail emphasizes ease and balance, from the well-proportioned bedrooms to the streamlined kitchen and serene bathroom. The space feels both efficient and warmly livable, creating a home that adapts to your rhythm. Set within the prestigious Gotenyama neighborhood, known for its tree-lined paths, embassies, and cultural heritage, the location offers rare tranquility in central Tokyo. With elegant cafés, historic gardens, and excellent access to transit, it appeals to professionals, couples, and families seeking a peaceful yet connected lifestyle.
Listed by Tokyo Portfolio • Acting as intermediary
Listing updated: 2025-12-08
Around This Property
Osaki
5 min walk
Yamanote- ShonanShinjuku
- Saikyo Kawagoe
- Rinkai
Kitashinagawa
15 min walk
- Main
Floor Plans & Monthly Fees

¥450,000
Priceper month
Including management fee (-)¥0
•
Insurance (¥0)
2
Beds
1
Baths
71.66
m²

More Units in This Building

SELENE Gotenyama
2025
Built
7
Units on sale
This property is listed by Tokyo Portfolio.
Phone: +81 (0)3-5447-8700
Address: 5-15-12 Minami-azabu, Minato-ku, Tokyo
License number: Governor of Tokyo License (1) No. 107013 / Member of the Ibaraki Prefecture Chapter of the All Japan Real Estate Association / Member of the Tokyo Metropolitan Area Real Estate Fair Trading Council
































