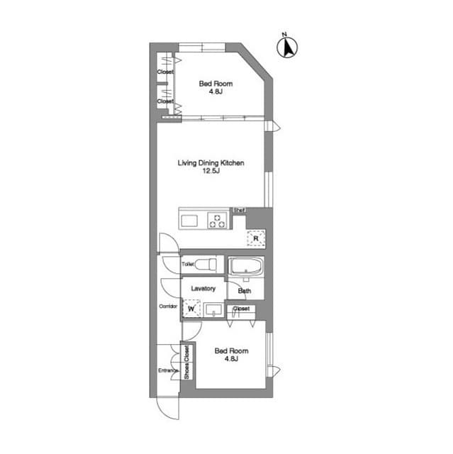
Welcome to unit 301 at Stylio Sakurashinmachi, a beautifully designed 2LDK condo that spans 52.52 square meters. This corner room on the third floor offers a bright and airy atmosphere, perfect for modern living. The layout seamlessly integrates comfort and functionality, featuring a system kitchen equipped with a reheating function, ideal for quick meals. The separate washbasin and bathroom with a dryer enhance daily routines, while the indoor washing machine space adds convenience. Enjoy peace of mind with security features like auto-lock, security cameras, and reinforced glass. With easy access to Sakura-shimmachi Station just a 6-minute walk away, commuting is effortless. Experience the perfect blend of comfort and accessibility in this inviting home.
Listed by Tokyo Portfolio • Acting as intermediary
Listing updated: 2026-03-30
Around This Property
Sakura-shimmachi
6 min walk
- Den En Toshi
Komazawa-daigaku
16 min walk
- Den En Toshi
Floor Plans & Monthly Fees

¥307,000
Priceper month
Including management fee (¥15,000)¥15,000
•
Insurance (¥0)
2
Beds
1
Baths
52.52
m²
*This is just a guide and may not accurately reflect what the total upfront fees will be. Some management companies will have other unique fees not accounted for here. We will always explain the full breakdown of upfront costs.
**If you have pets and this is a pet friendly property, expect to pay at least one additional month in security deposit.

More Units in This Building

STYLIO Sakurashinmachi
2026
Built
3
Units on sale
This property is listed by Tokyo Portfolio.
Phone: +81 (0)3-5447-8700
Address: 5-15-12 Minami-azabu, Minato-ku, Tokyo
License number: Governor of Tokyo License (1) No. 107013 / Member of the Ibaraki Prefecture Chapter of the All Japan Real Estate Association / Member of the Tokyo Metropolitan Area Real Estate Fair Trading Council














