Welcome to unit 701 in the stylish Stylio Sakura-Shinmachi, a beautifully designed 2LDK condo that offers 52.52 square meters of modern living. Perched on the seventh floor, this corner room invites natural light to fill the space, creating a warm and inviting atmosphere. The layout seamlessly integrates comfort and functionality, featuring a system kitchen equipped with a reheating function, perfect for culinary enthusiasts. Enjoy the convenience of an indoor washing machine space and a separate washbasin, making daily routines effortless. The separate bathroom and toilet enhance privacy, while the bathroom dryer adds a touch of luxury. Located just a 6-minute walk from Sakura-shimmachi Station, commuting is a breeze, allowing you to explore the vibrant city with ease. With amenities like a delivery box, auto-lock system, and 24-hour ventilation, this unit is designed for modern living. Experience the perfect blend of comfort and convenience in your new home.
Listed by Tokyo Portfolio • Acting as intermediary
Listing updated: 2026-03-30
Around This Property
Sakura-shimmachi
6 min walk
- Den En Toshi
Komazawa-daigaku
16 min walk
- Den En Toshi
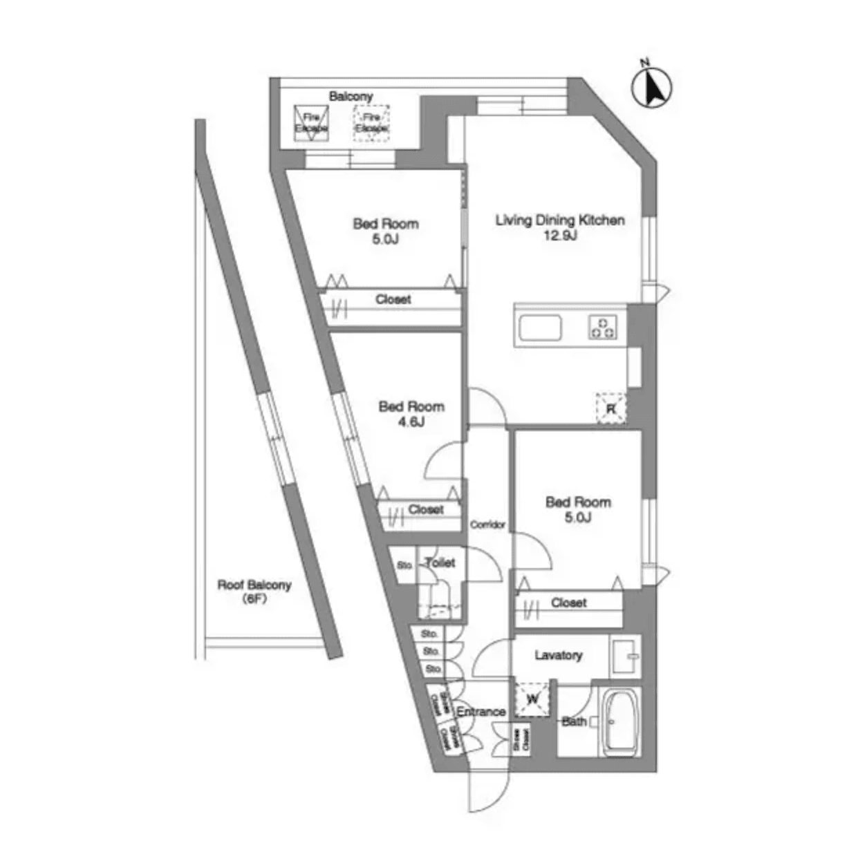
Floorplan


Monthly Fees
¥379,000
Priceper month
Including management fee (¥15,000)¥15,000
•
Insurance (¥0)
3
Beds
1
Baths
68.08
m²
*This is just a guide and may not accurately reflect what the total upfront fees will be. Some management companies will have other unique fees not accounted for here. We will always explain the full breakdown of upfront costs.
**If you have pets and this is a pet friendly property, expect to pay at least one additional month in security deposit.
More Units in This Building

STYLIO Sakurashinmachi
2026
Built
3
Units available
This property is listed by Tokyo Portfolio.
Phone: +81 (0)3-5447-8700
Address: 5-15-12 Minami-azabu, Minato-ku, Tokyo
License number: Governor of Tokyo License (1) No. 107013 / Member of the Ibaraki Prefecture Chapter of the All Japan Real Estate Association / Member of the Tokyo Metropolitan Area Real Estate Fair Trading Council














