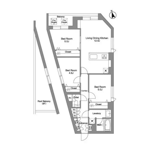
Welcome to unit 403 in the elegant Stylio Sakura-Shinmachi, a 2LDK condo that perfectly blends comfort and functionality. Spanning 52.52 square meters, this corner room offers an inviting layout that enhances daily living. The system kitchen, equipped with a reheating function, makes meal preparation a breeze, while the separate washbasin and bathroom dryer add convenience to your routine. Enjoy the ease of an indoor washing machine space and a separate bathroom and toilet, ensuring privacy and practicality. The thoughtful amenities, including a delivery box and security features like a camera and auto-lock, provide peace of mind. Located just a 6-minute walk from Sakura-shimmachi station, and 16 minutes from Komazawa-daigaku station, commuting is effortless. Experience a harmonious lifestyle in this well-appointed unit, where every detail supports your daily needs.
Listed by Tokyo Portfolio • Acting as intermediary
Listing updated: 2026-03-30
Around This Property
Sakura-shimmachi
6 min walk
- Den En Toshi
Komazawa-daigaku
16 min walk
- Den En Toshi
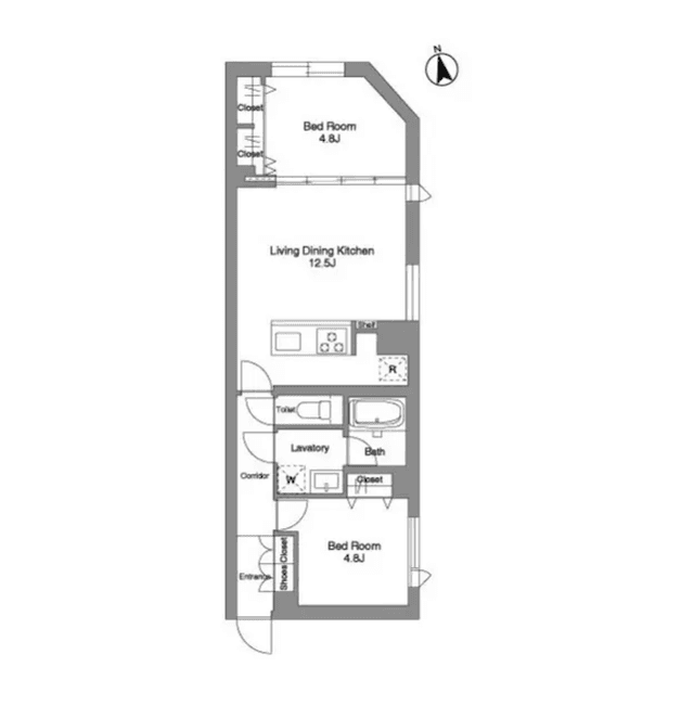
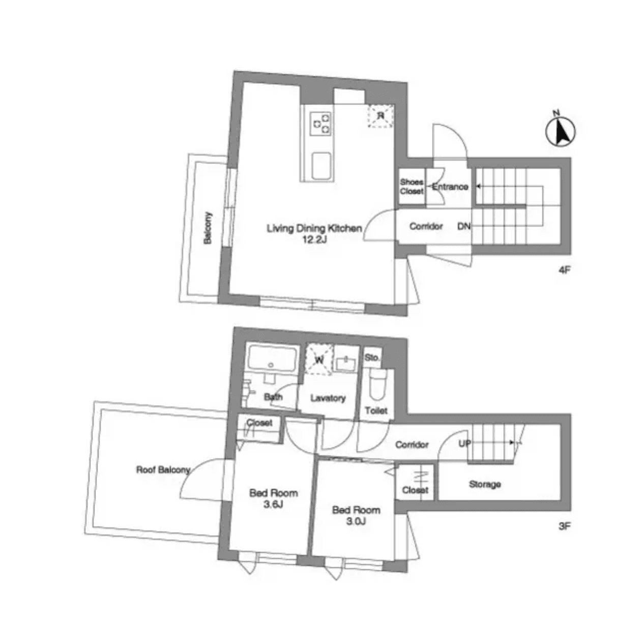
Floorplan


Monthly Fees
¥322,000
Priceper month
Including management fee (¥15,000)¥15,000
•
Insurance (¥0)
2
Beds
1
Baths
57.66
m²
*This is just a guide and may not accurately reflect what the total upfront fees will be. Some management companies will have other unique fees not accounted for here. We will always explain the full breakdown of upfront costs.
**If you have pets and this is a pet friendly property, expect to pay at least one additional month in security deposit.
More Units in This Building

STYLIO Sakurashinmachi
2026
Built
4
Units available
This property is listed by Tokyo Portfolio.
Phone: +81 (0)3-5447-8700
Address: 5-15-12 Minami-azabu, Minato-ku, Tokyo
License number: Governor of Tokyo License (1) No. 107013 / Member of the Ibaraki Prefecture Chapter of the All Japan Real Estate Association / Member of the Tokyo Metropolitan Area Real Estate Fair Trading Council















