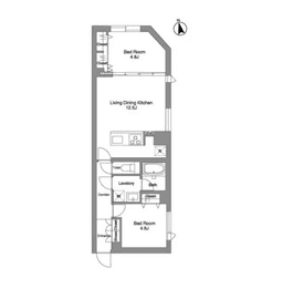
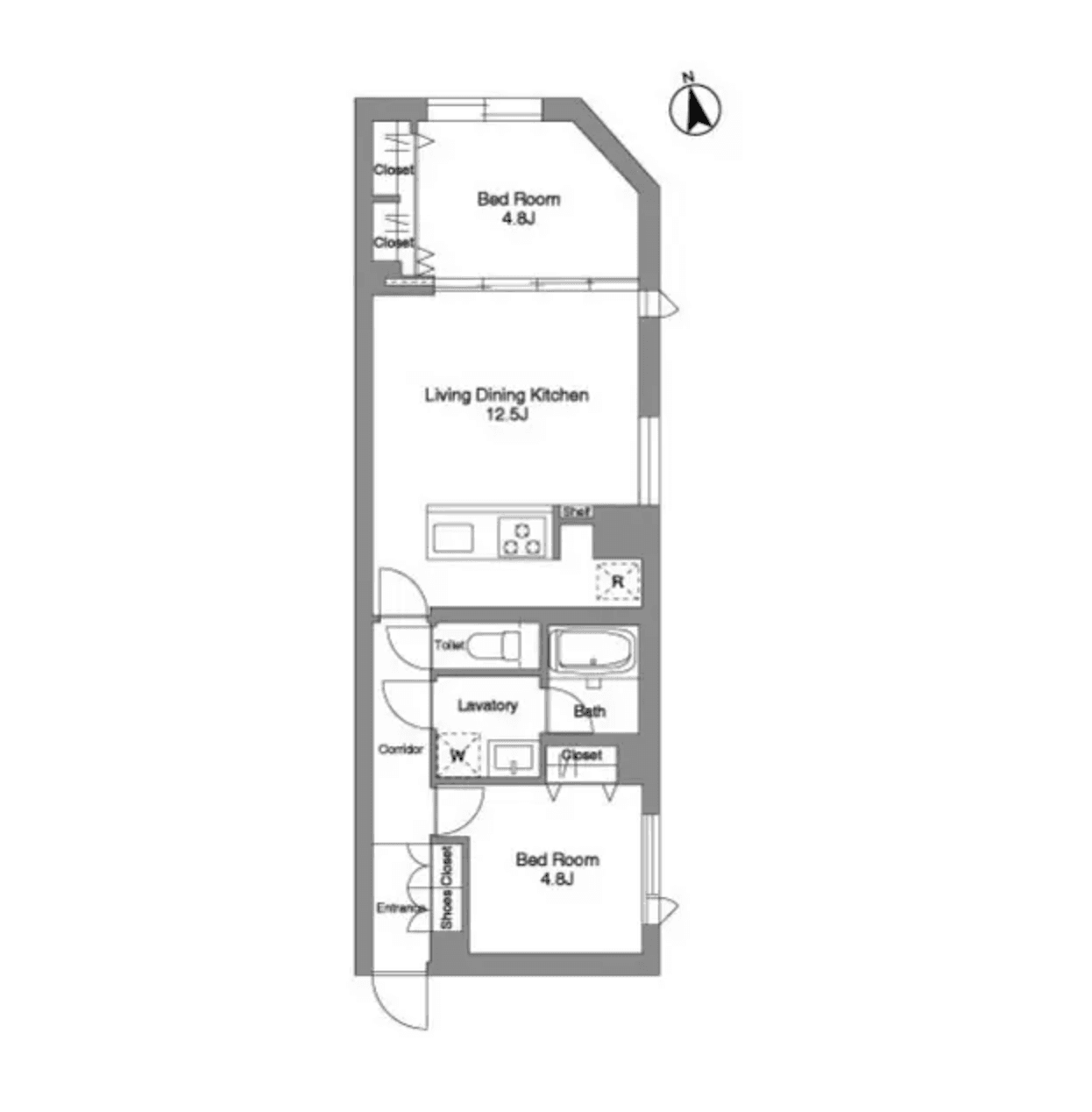
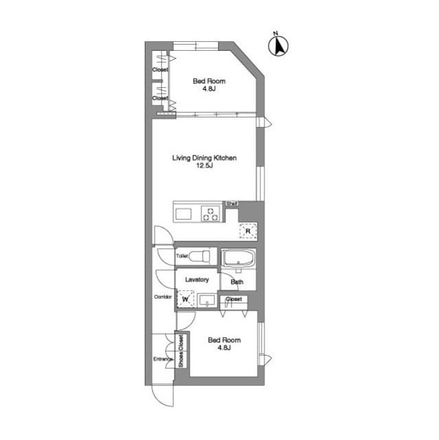
Welcome to unit 501 at Stylio Sakurashinmachi, a beautifully designed 2LDK condo that perfectly balances comfort and functionality. Spanning 52.52 square meters, this corner room invites natural light, creating a warm and inviting atmosphere. The open layout seamlessly connects the living area to a modern system kitchen, equipped with a reheating function for effortless meal prep. Enjoy the convenience of a separate washbasin and a bathroom dryer, enhancing your daily routine. The indoor washing machine space and separate bathroom and toilet add to the unit's practicality. With amenities like a TV intercom, delivery box, and 24-hour ventilation system, every detail has been thoughtfully considered for your comfort. Located just a 6-minute walk from Sakura-shimmachi Station on the Den En Toshi line, commuting is a breeze. Experience the ease of urban living while enjoying the tranquility of your stylish sanctuary.
Listed by Tokyo Portfolio • Acting as intermediary
Listing updated: 2026-03-30
Around This Property
Sakura-shimmachi
6 min walk
- Den En Toshi
Komazawa-daigaku
16 min walk
- Den En Toshi
Floor Plans & Monthly Fees

¥311,000
Priceper month
Including management fee (¥15,000)¥15,000
•
Insurance (¥0)
2
Beds
1
Baths
52.52
m²
*This is just a guide and may not accurately reflect what the total upfront fees will be. Some management companies will have other unique fees not accounted for here. We will always explain the full breakdown of upfront costs.
**If you have pets and this is a pet friendly property, expect to pay at least one additional month in security deposit.

More Units in This Building

STYLIO Sakurashinmachi
2026
Built
3
Units on sale
This property is listed by Tokyo Portfolio.
Phone: +81 (0)3-5447-8700
Address: 5-15-12 Minami-azabu, Minato-ku, Tokyo
License number: Governor of Tokyo License (1) No. 107013 / Member of the Ibaraki Prefecture Chapter of the All Japan Real Estate Association / Member of the Tokyo Metropolitan Area Real Estate Fair Trading Council














