






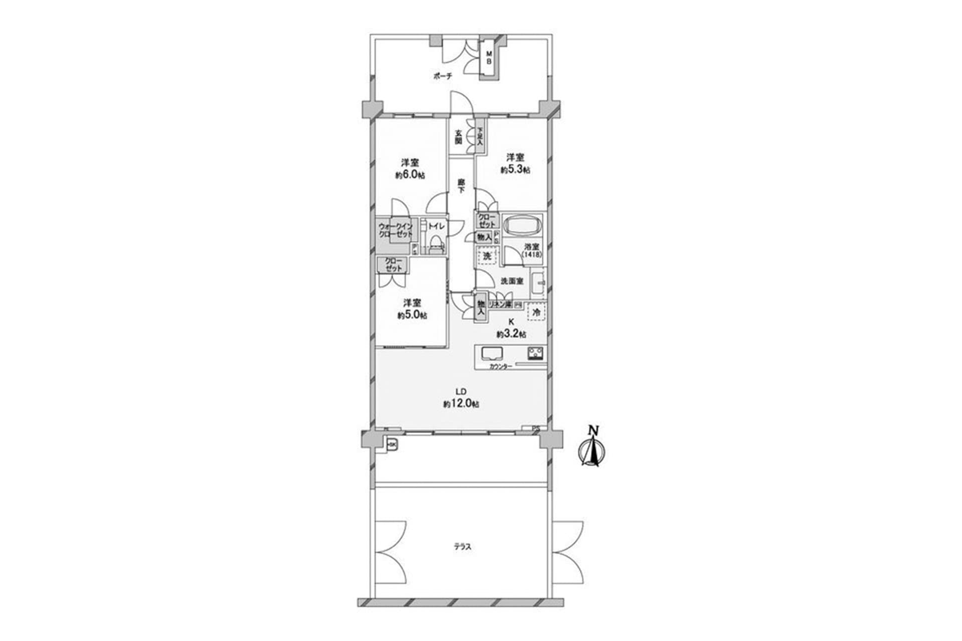
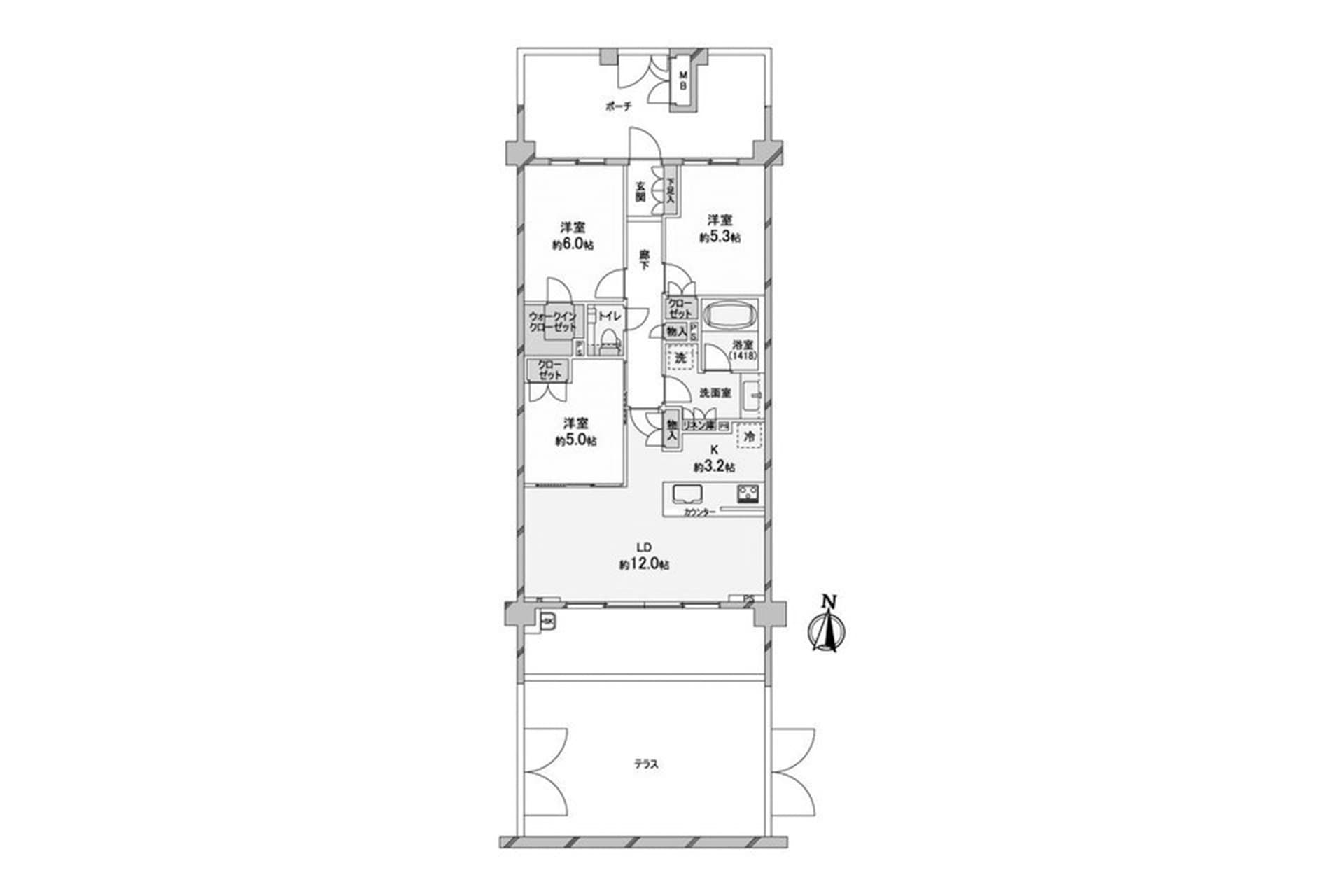
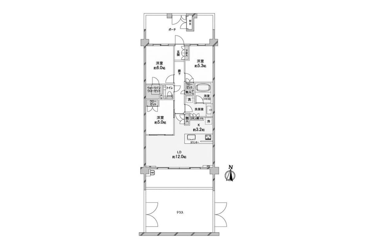
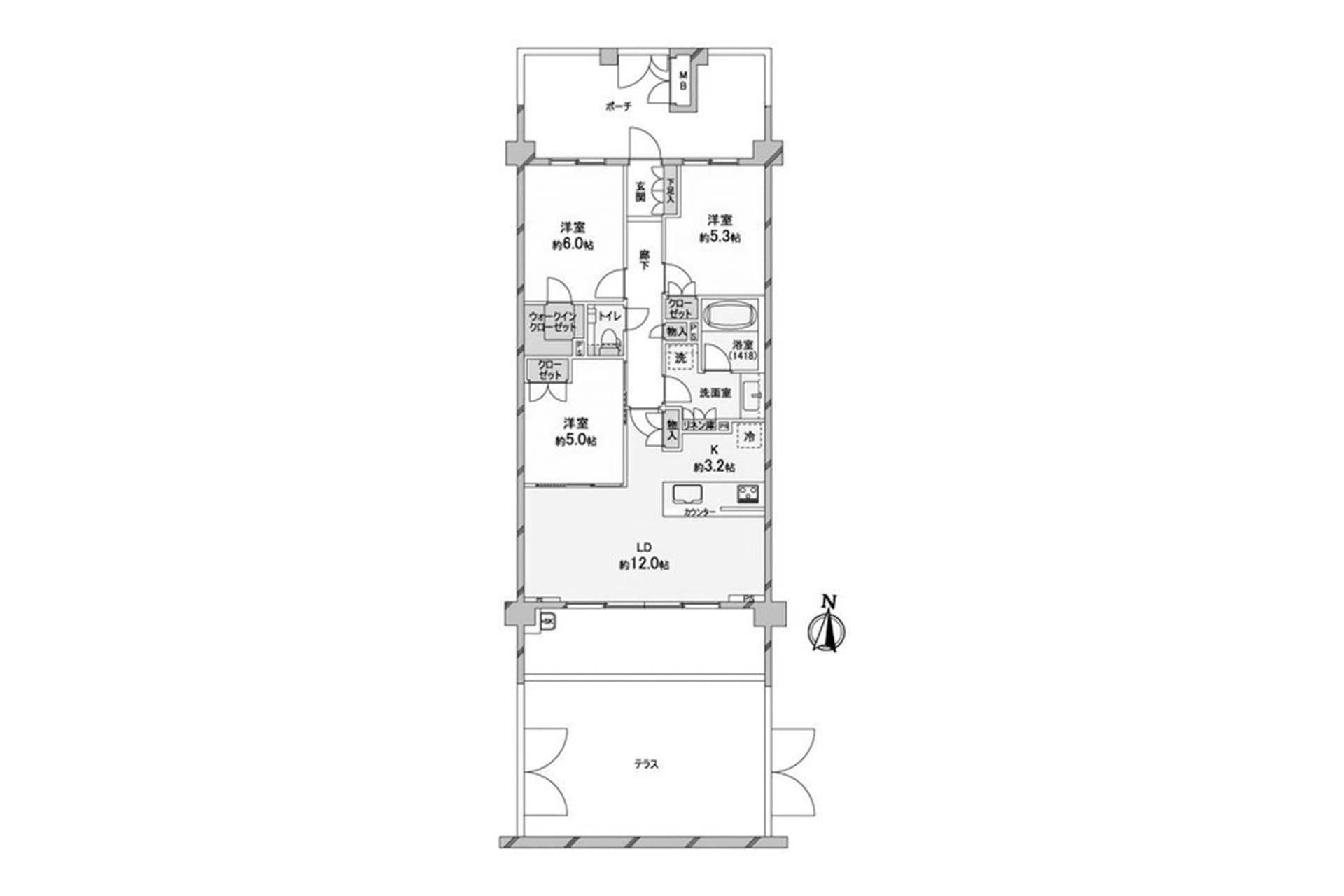
Tucked away in the serene residential streets near Musashi-Koyama Station, The Terrace Shimomeguro offers a rare blend of urban convenience and tranquil comfort. This neighborhood, known for its friendly community, charming cafés, and the popular Palm Shopping Street, provides everything from daily essentials to gourmet dining. It’s an ideal location for families and professionals who value both connection and calm in the heart of Tokyo. Inside, the newly renovated 3-bedroom residence spans 71.61㎡, featuring a bright, open-plan living area that extends seamlessly onto a 17.23㎡ private terrace—perfect for morning coffee or evening gatherings. With free high-speed internet, piano-friendly regulations, and refined modern finishes, this home embodies effortless sophistication and everyday ease.
Listed by Tokyo Portfolio • Acting as intermediary
Listing updated: 2025-11-10
Around This Property
Musashi-koyama
16 min walk
- Meguro
Floor Plans & Monthly Fees

¥283,000
Priceper month
Including management fee (-)¥0
•
Insurance (¥0)
3
Beds
1
Baths
71.61
m²

This property is listed by Tokyo Portfolio.
Phone: +81 (0)3-5447-8700
Address: 5-15-12 Minami-azabu, Minato-ku, Tokyo
License number: Governor of Tokyo License (1) No. 107013 / Member of the Ibaraki Prefecture Chapter of the All Japan Real Estate Association / Member of the Tokyo Metropolitan Area Real Estate Fair Trading Council


















