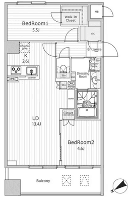
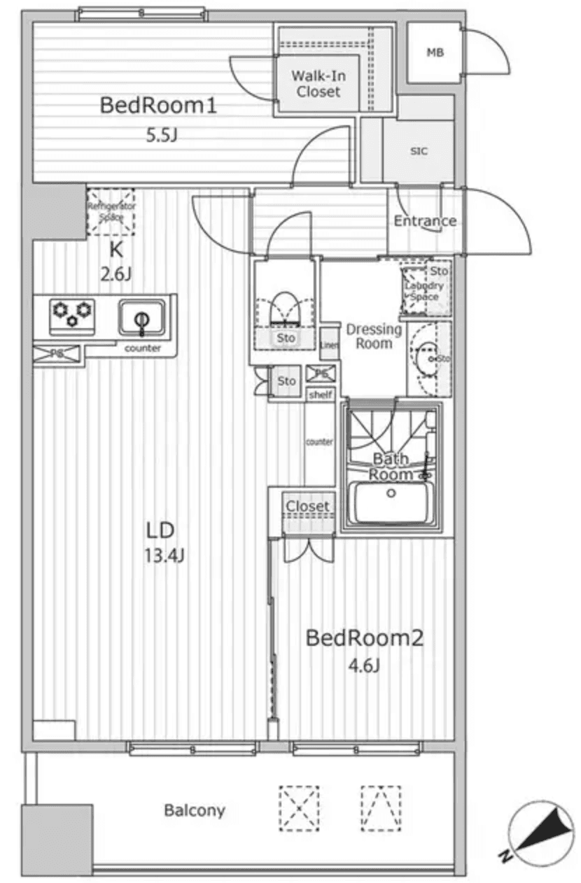
Welcome to unit 601 at Viera Court Nihonbashi Hisamatsu-cho, a thoughtfully designed 2LDK condo that spans 58.85 square meters. This sixth-floor retreat offers a harmonious blend of comfort and functionality, perfect for modern living. Step inside to discover an inviting layout that maximizes space. The system kitchen is a chef's dream, while the separate washbasin and bathroom dryer enhance daily routines. Enjoy the convenience of an indoor washing machine space and a separate bathroom and toilet, ensuring privacy and ease. The walk-in closet provides ample storage, and the air-conditioning keeps the atmosphere just right. A balcony invites you to unwind outdoors, while the concierge service adds a touch of luxury to your everyday life. Located just a five-minute walk from Ningyocho, Higashi-nihombashi, and Bakuro-yokoyama stations, commuting is a breeze. Experience the perfect blend of comfort and accessibility in this exceptional apartment.
Listed by Tokyo Portfolio • Acting as intermediary
Listing updated: 2026-04-02
Around This Property
Ningyocho
5 min walk
- Hibiya
Higashi-nihombashi
5 min walk
- Asakusa
Bakuro-yokoyama
5 min walk
- Shinjuku
Floor Plans & Monthly Fees

¥378,000
Priceper month
Including management fee (¥20,000)¥20,000
•
Insurance (¥0)
2
Beds
1
Baths
58.85
m²
*This is just a guide and may not accurately reflect what the total upfront fees will be. Some management companies will have other unique fees not accounted for here. We will always explain the full breakdown of upfront costs.
**If you have pets and this is a pet friendly property, expect to pay at least one additional month in security deposit.

This property is listed by Tokyo Portfolio.
Phone: +81 (0)3-5447-8700
Address: 5-15-12 Minami-azabu, Minato-ku, Tokyo
License number: Governor of Tokyo License (1) No. 107013 / Member of the Ibaraki Prefecture Chapter of the All Japan Real Estate Association / Member of the Tokyo Metropolitan Area Real Estate Fair Trading Council










