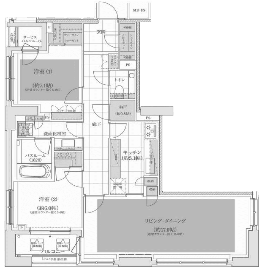
Welcome to unit 1001 at Atlas Azabudai, a stunning 2LDK condo that redefines urban living. Spanning 88.67 sqm on the 10th floor, this space is designed for comfort and functionality. The open layout seamlessly connects the living and dining areas, creating an inviting atmosphere perfect for both relaxation and entertaining. Enjoy the luxury of a separate bathroom and toilet, complete with a bidet for added convenience. A spacious walk-in closet offers ample storage, while the balcony invites you to savor fresh air and city views. The unit is pet-friendly, ensuring your furry companions feel at home too. Located just a 6-minute walk from Azabu-juban station and 11 minutes from Roppongi, commuting is a breeze. With designated parking and an autolock system, your peace of mind is prioritized. Experience the perfect blend of comfort and accessibility at Atlas Azabudai.
Listed by Tokyo Portfolio • Acting as intermediary
Listing updated: 2026-02-27
Around This Property
Azabu-juban
6 min walk
- Oedo
- Namboku
Roppongi
11 min walk
- Oedo
- Hibiya
Payment Calculator

Property Price
Interest rate
The average interest rate for a 35-year fixed loan is 1.368%, while the average variable interest rate is 0.470%.
Loan term
Down payment (20%)¥0
Estimated closing fees (5-8%)
¥24,100,000 – ¥38,560,000
↳ Commission (3.3%) + ¥66,000¥15,972,000
TOTAL DUE AT CLOSE
¥24,100,000 – ¥38,560,000| Down payment (20%) | ¥0 |
| Estimated closing fees (5-8%) ↳ Commission (3.3%) + ¥66,000 | ¥24,100,000 – ¥38,560,000 ¥15,972,000 |
| TOTAL DUE AT CLOSE | ¥24,100,000 – ¥38,560,000 |
|---|
As some of these numbers are calculated using the government-assessed value of the property, the actual total upfront cost cannot be known. Generally speaking, we recommend clients prepare an additional 5–8% on top of the list price.
See here for more details
More Units in This Building

Atlas Azabudai
2025
Built
1
Units available
This property is listed by Tokyo Portfolio.
Phone: +81 (0)3-5447-8700
Address: 5-15-12 Minami-azabu, Minato-ku, Tokyo
License number: Governor of Tokyo License (1) No. 107013 / Member of the Ibaraki Prefecture Chapter of the All Japan Real Estate Association / Member of the Tokyo Metropolitan Area Real Estate Fair Trading Council










