
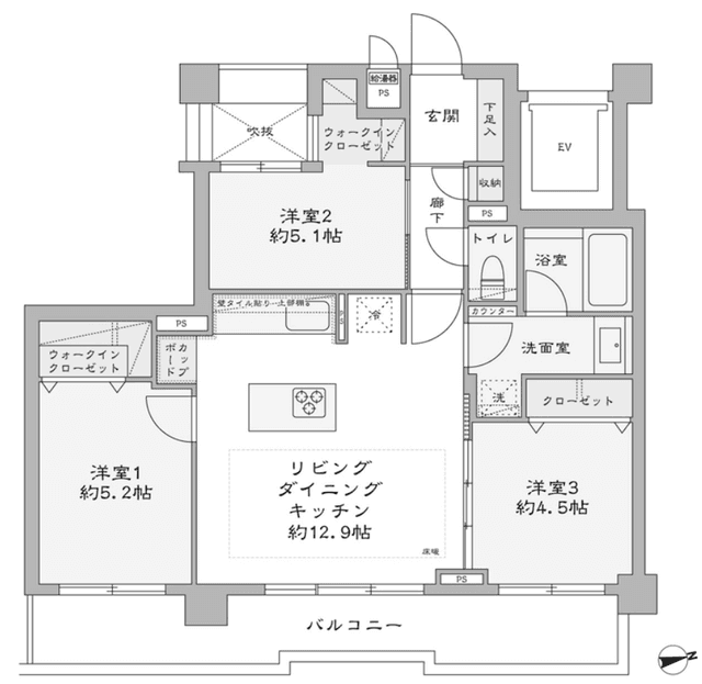
Welcome to Dom Kagurazaka, a charming condominium nestled in the heart of Shinjuku City. Built in 1996, this well-maintained building features a distinctive architectural style that harmonizes with its vibrant surroundings. With only 20 units, residents enjoy a sense of community and intimacy, complemented by essential amenities such as bike, car, and motorcycle parking, as well as CATV services. The neighborhood is a delightful blend of urban convenience and cultural richness. Just an 8-minute walk to Kagurazaka Station and a short stroll to Iidabashi Station, residents have easy access to Tokyo's extensive transit network. The area is known for its lively atmosphere, with a variety of shops, restaurants, and parks, making it ideal for professionals, families, and anyone seeking a dynamic lifestyle.
Listed by Tokyo Portfolio • Acting as intermediary
Listing updated: 2026-01-21
This property is listed by Tokyo Portfolio.
Phone: +81 (0)3-5447-8700
Address: 5-15-12 Minami-azabu, Minato-ku, Tokyo
License number: Governor of Tokyo License (1) No. 107013 / Member of the Ibaraki Prefecture Chapter of the All Japan Real Estate Association / Member of the Tokyo Metropolitan Area Real Estate Fair Trading Council