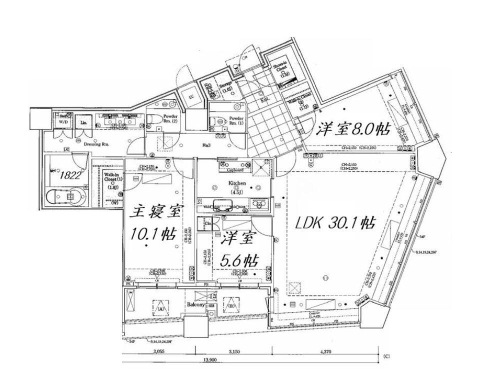
Welcome to unit 24F, a spacious 128.78 sqm sanctuary perched on the 24th floor. This thoughtfully designed apartment offers an inviting layout that seamlessly blends comfort and functionality, perfect for modern living. Step inside to discover a well-appointed space that includes a separate bathroom and toilet, ensuring privacy and convenience. The bidet-toilet adds a touch of luxury to your daily routine. Enjoy the fresh air and stunning views from your private balcony, an ideal spot for morning coffee or evening relaxation. With dedicated car parking, your daily commute becomes effortless. Experience the perfect blend of comfort and practicality in this exquisite unit.
Listed by Tokyo Portfolio • Acting as intermediary
Listing updated: 2026-03-05
Around This Property
Aoyama-itchome
9 min walk
- Oedo
- Ginza
Akasaka
9 min walk
- Chiyoda
Payment Calculator

Property Price
Interest rate
The average interest rate for a 35-year fixed loan is 1.368%, while the average variable interest rate is 0.470%.
Loan term
Down payment (20%)¥0
Estimated closing fees (5-8%)
¥29,900,000 – ¥47,840,000
↳ Commission (3.3%) + ¥66,000¥19,800,000
TOTAL DUE AT CLOSE
¥29,900,000 – ¥47,840,000| Down payment (20%) | ¥0 |
| Estimated closing fees (5-8%) ↳ Commission (3.3%) + ¥66,000 | ¥29,900,000 – ¥47,840,000 ¥19,800,000 |
| TOTAL DUE AT CLOSE | ¥29,900,000 – ¥47,840,000 |
|---|
As some of these numbers are calculated using the government-assessed value of the property, the actual total upfront cost cannot be known. Generally speaking, we recommend clients prepare an additional 5–8% on top of the list price.
See here for more details
More Units in This Building

Park Court Akasaka The Tower
2009
Built
2
Units available
This property is listed by Tokyo Portfolio.
Phone: +81 (0)3-5447-8700
Address: 5-15-12 Minami-azabu, Minato-ku, Tokyo
License number: Governor of Tokyo License (1) No. 107013 / Member of the Ibaraki Prefecture Chapter of the All Japan Real Estate Association / Member of the Tokyo Metropolitan Area Real Estate Fair Trading Council









