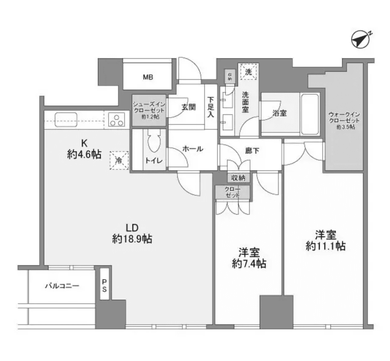
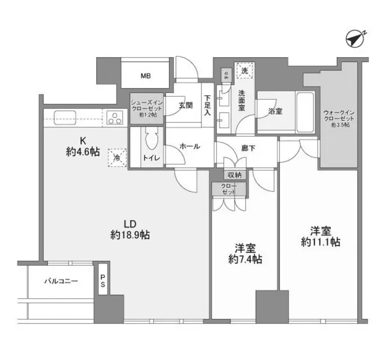
Welcome to unit 2003 in Aoyama The Tower, where modern living meets comfort in a spacious 98.16 square meters. This 2LDK condo on the 20th floor offers an open layout that seamlessly integrates the living, dining, and kitchen areas, perfect for both relaxation and entertaining. The system kitchen is equipped with a convenient reheating function and a disposer, making meal prep a breeze. Enjoy the luxury of a separate washbasin and a bathroom dryer, while the walk-in closet provides ample storage for your wardrobe. With floor heating, every step feels inviting, and the security features ensure peace of mind. Located just a short walk from Gaiemmae Station, and within easy reach of Omote-sando and Aoyama-itchome stations, this unit offers both accessibility and a vibrant lifestyle. Experience the perfect blend of functionality and elegance in your new home.
Listed by Tokyo Portfolio • Acting as intermediary
Listing updated: 2026-04-07
Around This Property
Gaiemmae
3 min walk
- Ginza
Omote-sando
9 min walk
- Ginza
Aoyama-itchome
10 min walk
- Ginza
Floorplan


Monthly Fees
¥800,000
Priceper month
Including management fee (¥0)¥0
•
Insurance (¥0)
2
Beds
1
Baths
98.16
m²
*This is just a guide and may not accurately reflect what the total upfront fees will be. Some management companies will have other unique fees not accounted for here. We will always explain the full breakdown of upfront costs.
**If you have pets and this is a pet friendly property, expect to pay at least one additional month in security deposit.
More Units in This Building

Aoyama The Tower
2004
Built
1
Units available
This property is listed by Tokyo Portfolio.
Phone: +81 (0)3-5447-8700
Address: 5-15-12 Minami-azabu, Minato-ku, Tokyo
License number: Governor of Tokyo License (1) No. 107013 / Member of the Ibaraki Prefecture Chapter of the All Japan Real Estate Association / Member of the Tokyo Metropolitan Area Real Estate Fair Trading Council












