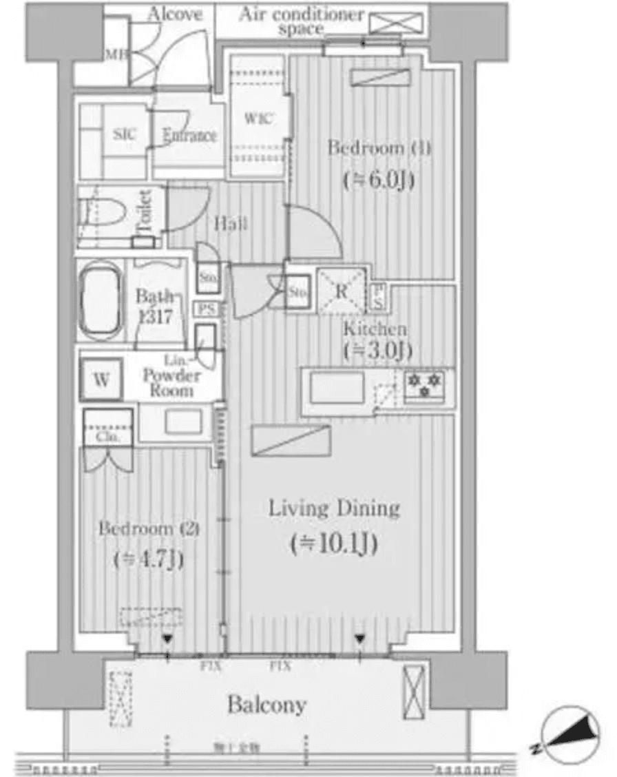
Welcome to unit 703 at Geo Yotsuya Arakicho, a beautifully designed 2LDK condo that spans 55.75 square meters on the seventh floor. This inviting space features a thoughtful layout that seamlessly blends comfort and functionality, making it perfect for modern living. The heart of the home is the system kitchen, equipped with a dishwasher and a reheating function, ideal for culinary enthusiasts. Enjoy the convenience of a separate washbasin and a bathroom with a dryer, enhancing your daily routine. The spacious walk-in closet offers ample storage, while the air-conditioning and floor heating ensure year-round comfort. Step out onto your private balcony to unwind, and take advantage of the building's amenities, including a concierge service and bicycle parking. With Yotsuya-sanchome and Yotsuya stations just a short walk away, commuting is a breeze, allowing you to fully embrace the vibrant lifestyle this location offers.
Listed by Tokyo Portfolio • Acting as intermediary
Listing updated: 2026-03-21
Around This Property
Yotsuya-sanchome
5 min walk
- Marunouchi
Yotsuya
9 min walk
- Chuo Rapid
Akebonobashi
6 min walk
- Shinjuku
Floor Plans & Monthly Fees

¥324,000
Priceper month
Including management fee (¥0)¥0
•
Insurance (¥0)
2
Beds
1
Baths
55.75
m²
*This is just a guide and may not accurately reflect what the total upfront fees will be. Some management companies will have other unique fees not accounted for here. We will always explain the full breakdown of upfront costs.
**If you have pets and this is a pet friendly property, expect to pay at least one additional month in security deposit.

More Units in This Building

Geo Yotsuya Arakicho
2018
Built
1
Units available
This property is listed by Tokyo Portfolio.
Phone: +81 (0)3-5447-8700
Address: 5-15-12 Minami-azabu, Minato-ku, Tokyo
License number: Governor of Tokyo License (1) No. 107013 / Member of the Ibaraki Prefecture Chapter of the All Japan Real Estate Association / Member of the Tokyo Metropolitan Area Real Estate Fair Trading Council











