













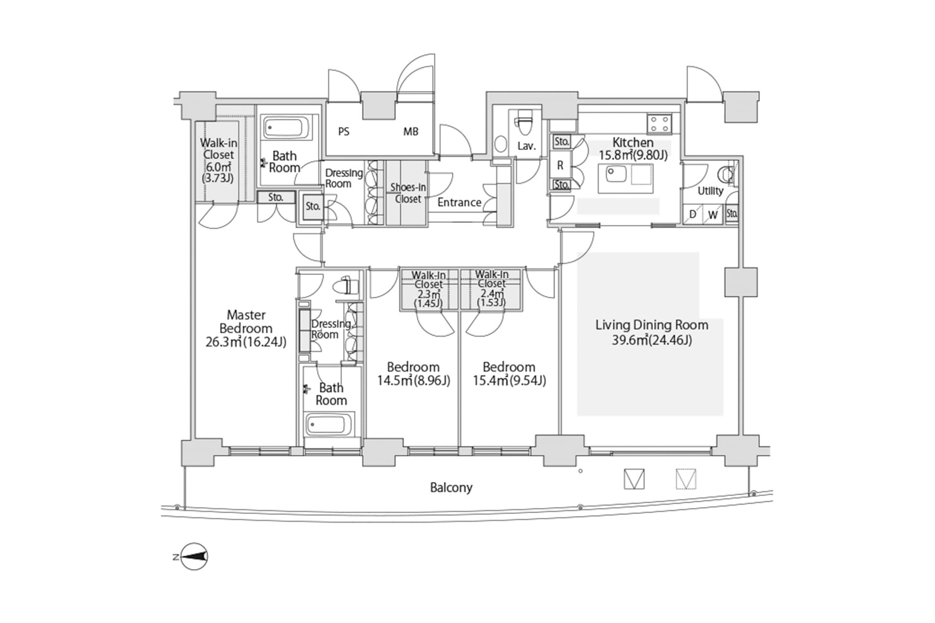
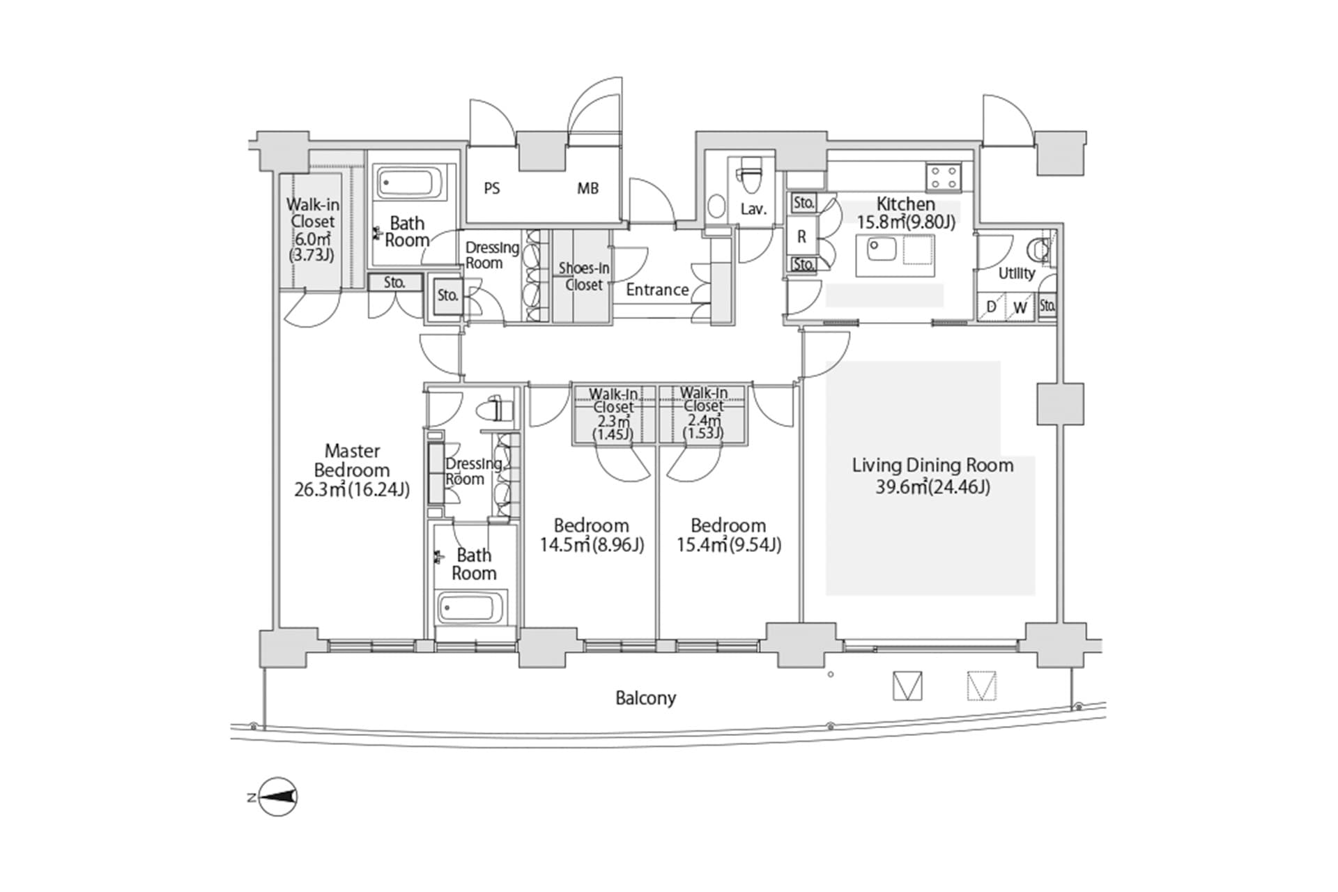
Elevate your urban lifestyle in La Tour SHIODOME, a spacious 3LDK residence spanning 173.18㎡ with over 100㎡ of elegant living space. Sunlight streams through expansive windows, highlighting thoughtful details and abundant storage throughout. A private retreat for pets, the home also features two luxurious bathrooms and seamless living spaces ideal for entertaining or family life. Concierge services add a layer of convenience and sophistication to daily living. Nestled near Hamamatsucho Station, this vibrant district blends waterfront charm with city dynamism. Residents enjoy easy access to parks, shopping, and dining, making it perfect for professionals, families, or anyone seeking a cosmopolitan lifestyle with tranquil havens nearby.
Listed by Tokyo Portfolio • Acting as intermediary
Listing updated: 2025-10-19
Around This Property
Hamamatsucho
4 min walk
Yamanote
Keihin Tohoku Negishi
Daimon
4 min walk
- Asakusa
- Oedo
The British School Tokyo (Azabudai Hills)
Ages 3-18 years | By Car 11 mins by foot
Floor Plans & Monthly Fees

¥1,680,000
Priceper month
Including management fee (-)¥0
•
Insurance (¥0)
3
Beds
2
Baths
173.18
m²

More Units in This Building

La Tour SHIODOME
2004
Built
4
Units on sale
This property is listed by Tokyo Portfolio.
Phone: +81 (0)3-5447-8700
Address: 5-15-12 Minami-azabu, Minato-ku, Tokyo
License number: Governor of Tokyo License (1) No. 107013 / Member of the Ibaraki Prefecture Chapter of the All Japan Real Estate Association / Member of the Tokyo Metropolitan Area Real Estate Fair Trading Council



























