






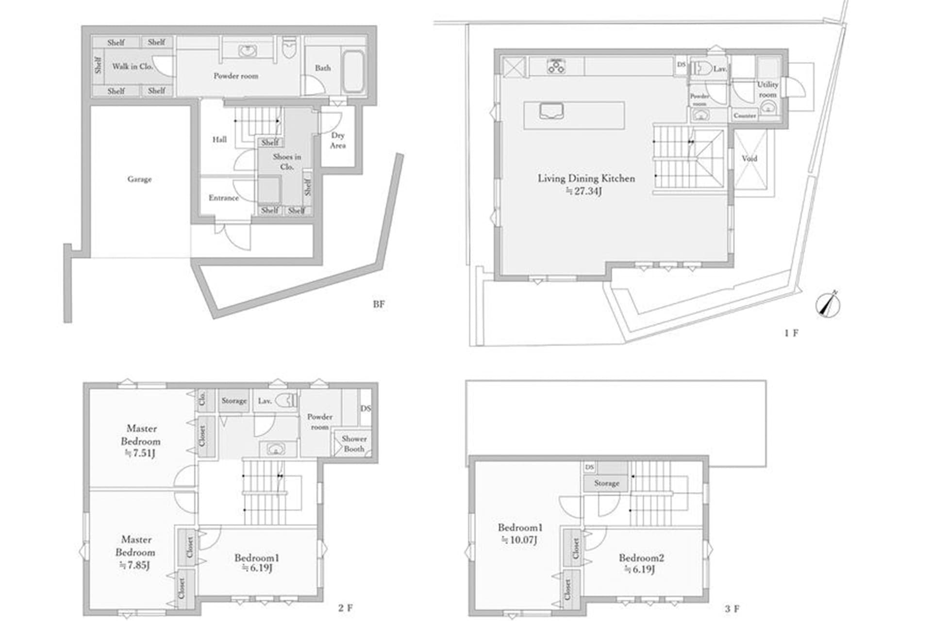
Nestled in the prestigious Minamiazabu 3-chome, this immaculate, never-occupied 5LDK residence exudes modern sophistication across 225.3㎡ of meticulously designed space. Sunlight fills the expansive living areas, enhanced by full-house air conditioning, while the sleek kitchen boasts a dishwasher, disposer, and water purifier. A luxurious bathroom is complemented by a separate shower room, and three well-appointed toilets ensure family convenience. Covered, flat parking accommodates multiple vehicles, and pet-friendly and music-friendly options make this home uniquely versatile. Minamiazabu offers a serene, upscale lifestyle just minutes from Roppongi and Azabu-Juban. Known for its quiet streets, international schools, and stylish dining, it is perfect for families or professionals seeking tranquility without sacrificing centrality. Here, city living meets refined comfort in every detail.
Listed by Tokyo Portfolio • Acting as intermediary
Listing updated: 2025-09-01
Around This Property
Azabu-juban
12 min walk
- Oedo
- Namboku
Nishimachi International School
Ages 5-14 years | Walk 4 mins by foot
The Montessori School of Tokyo (Grove Campus)
Ages 1-15 years | Walk 5 mins by foot
The Montessori School of Tokyo (Forest Campus)
Ages 1-15 years | Walk 1 mins by foot
Tokyo International School
Ages 4-16 years | Walk 8 mins by foot
Floor Plans & Monthly Fees

¥1,600,000
Priceper month
Including management fee (-)¥0
•
Insurance (¥0)
5
Beds
1.5
Baths
225.3
m²

This property is listed by Tokyo Portfolio.
Phone: +81 (0)3-5447-8700
Address: 5-15-12 Minami-azabu, Minato-ku, Tokyo
License number: Governor of Tokyo License (1) No. 107013 / Member of the Ibaraki Prefecture Chapter of the All Japan Real Estate Association / Member of the Tokyo Metropolitan Area Real Estate Fair Trading Council
















