




















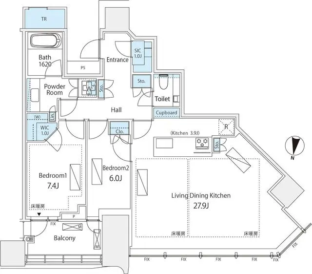
Soaring on the 20th floor of Park Court Shibuya The Tower, this sunlit 1LDK residence offers a front-row view of Tokyo’s dynamic skyline. With no tall buildings obstructing the southern exposure, natural light floods the 40.01㎡ space, creating an uplifting atmosphere throughout the day. The modern kitchen, equipped with a dishwasher, disposer, and water purifier, makes daily living both stylish and effortless. Residents also enjoy access to exclusive shared amenities, including a serene view lounge just steps away. Nestled in the heart of Shibuya, this iconic tower is surrounded by world-class shopping, dining, and cultural landmarks. The area’s energy appeals to professionals, creatives, and couples who value both convenience and vibrant city living, while nearby parks and hidden cafés provide moments of tranquility amid the excitement.
Listed by Tokyo Portfolio • Acting as intermediary
Listing updated: 2025-08-21
Around This Property
Shibuya
9 min walk
- Saikyo Kawagoe
Yamanote- ShonanShinjuku
- Inokashira
- Hanzomon
- Ginza
- Fukutoshin
- Toyoko
- Den En Toshi
The British School Tokyo (Shibuya)
Ages 3-18 years | Walk 6 mins by foot
Floor Plans & Monthly Fees

¥360,000
Priceper month
Including management fee (-)¥0
•
Insurance (¥0)
1
Beds
1
Baths
40.01
m²

More Units in This Building

Park Court Shibuya The Tower
2020
Built
2
Units on sale
This property is listed by Tokyo Portfolio.
Phone: +81 (0)3-5447-8700
Address: 5-15-12 Minami-azabu, Minato-ku, Tokyo
License number: Governor of Tokyo License (1) No. 107013 / Member of the Ibaraki Prefecture Chapter of the All Japan Real Estate Association / Member of the Tokyo Metropolitan Area Real Estate Fair Trading Council





















