

























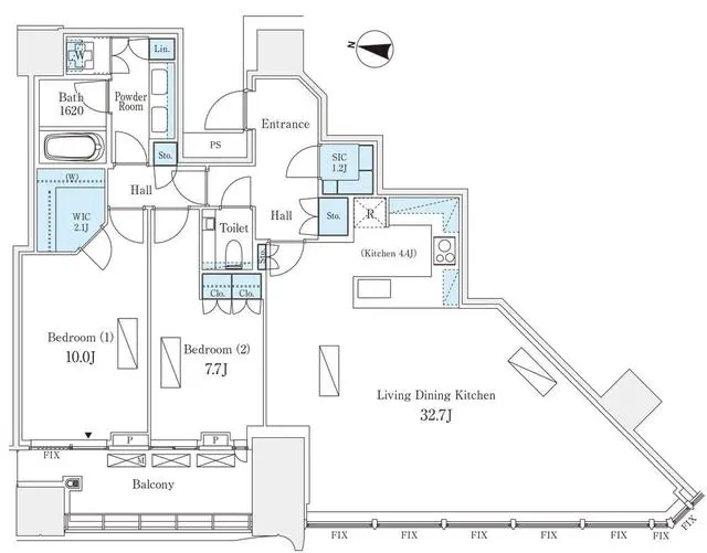
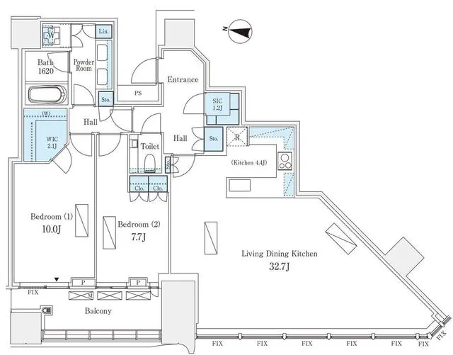
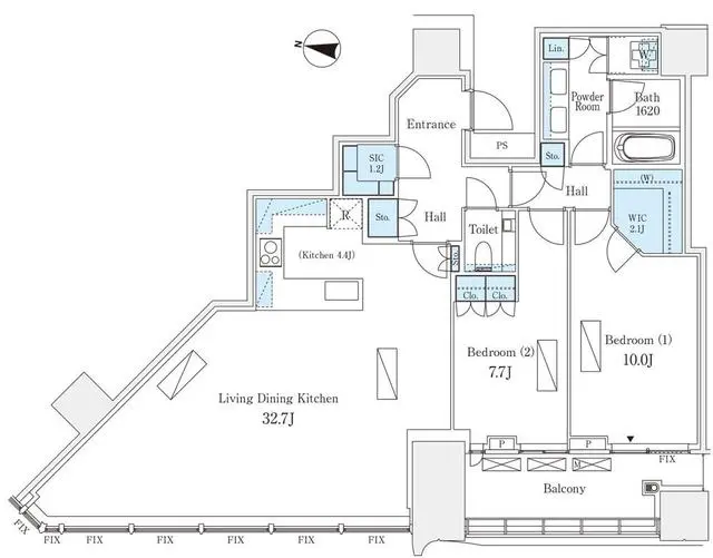
On the 38th floor of Park Court Shibuya The Tower, this 113.72m² 2LDK residence rises above the city in quiet elegance. Sunlight sweeps across the expansive living area, framing panoramic views that turn every moment—morning coffee, evening wine—into a private skyline ritual. Step outside and Shibuya unfolds as a vibrant, walkable playground. From boutique cafés and late-night dining to serene hillside parks, the neighborhood blends energy and comfort in equal measure. Creative professionals, young couples, and urban-minded families will find a community shaped by convenience, culture, and constant inspiration. A home defined by height, light, and unmistakable Shibuya character.
Listed by Tokyo Portfolio • Acting as intermediary
Listing updated: 2025-11-19
Around This Property
Shibuya
9 min walk
- Saikyo Kawagoe
Yamanote- ShonanShinjuku
- Inokashira
- Hanzomon
- Ginza
- Fukutoshin
- Toyoko
- Den En Toshi
The British School Tokyo (Shibuya)
Ages 3-18 years | Walk 6 mins by foot
Floor Plans & Monthly Fees

¥1,250,000
Priceper month
Including management fee (-)¥0
•
Insurance (¥0)
2
Beds
1
Baths
113.72
m²

More Units in This Building

Park Court Shibuya The Tower
2020
Built
3
Units on sale
This property is listed by Tokyo Portfolio.
Phone: +81 (0)3-5447-8700
Address: 5-15-12 Minami-azabu, Minato-ku, Tokyo
License number: Governor of Tokyo License (1) No. 107013 / Member of the Ibaraki Prefecture Chapter of the All Japan Real Estate Association / Member of the Tokyo Metropolitan Area Real Estate Fair Trading Council






















