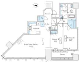
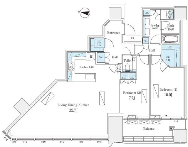
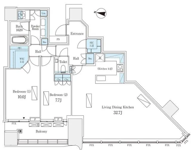
Soaring from the 38th floor, this 113.72㎡ 2LDK residence in Park Court Shibuya The Tower commands a sweeping, cinematic view of Tokyo—stretching from the glimmering Shibuya skyline to distant mountain silhouettes. Designed for those who live with intent and artistry, its refined orientation captures both soft morning light and the golden hue of Tokyo’s sunsets, enveloping the home in warmth throughout the day. The expansive living and dining area invites elegant gatherings and quiet reflection alike, complemented by contemporary finishes, seamless storage, and a kitchen that blends functionality with sculptural beauty. Every element is crafted to elevate daily life into an experience of calm sophistication. Nestled in Shibuya’s Sakuragaoka district, the tower stands amid Tokyo’s creative pulse. Trendsetting cafés, Michelin-starred dining, and design-forward boutiques line the streets, while landscaped terraces and hidden shrines lend moments of tranquility. Ideal for cosmopolitan profe...
Listed by Tokyo Portfolio • Acting as intermediary
Listing updated: 2025-11-19
Around This Property
Shibuya
9 min walk
- Saikyo
Yamanote- ShonanShinjuku
- Inokashira
- Hanzomon
- Ginza
- Fukutoshin
- Toyoko
- Den En Toshi
The British School Tokyo (Shibuya)
Ages 3-18 years | Walk 6 mins by foot
Floor Plans & Monthly Fees

¥1,250,000
Priceper month
Including management fee (¥0)¥0
•
Insurance (¥0)
2
Beds
1
Baths
113.72
m²
*This is just a guide and may not accurately reflect what the total upfront fees will be. Some management companies will have other unique fees not accounted for here. We will always explain the full breakdown of upfront costs.
**If you have pets and this is a pet friendly property, expect to pay at least one additional month in security deposit.

More Units in This Building

Park Court Shibuya The Tower
2020
Built
4
Units available
This property is listed by Tokyo Portfolio.
Phone: +81 (0)3-5447-8700
Address: 5-15-12 Minami-azabu, Minato-ku, Tokyo
License number: Governor of Tokyo License (1) No. 107013 / Member of the Ibaraki Prefecture Chapter of the All Japan Real Estate Association / Member of the Tokyo Metropolitan Area Real Estate Fair Trading Council





























