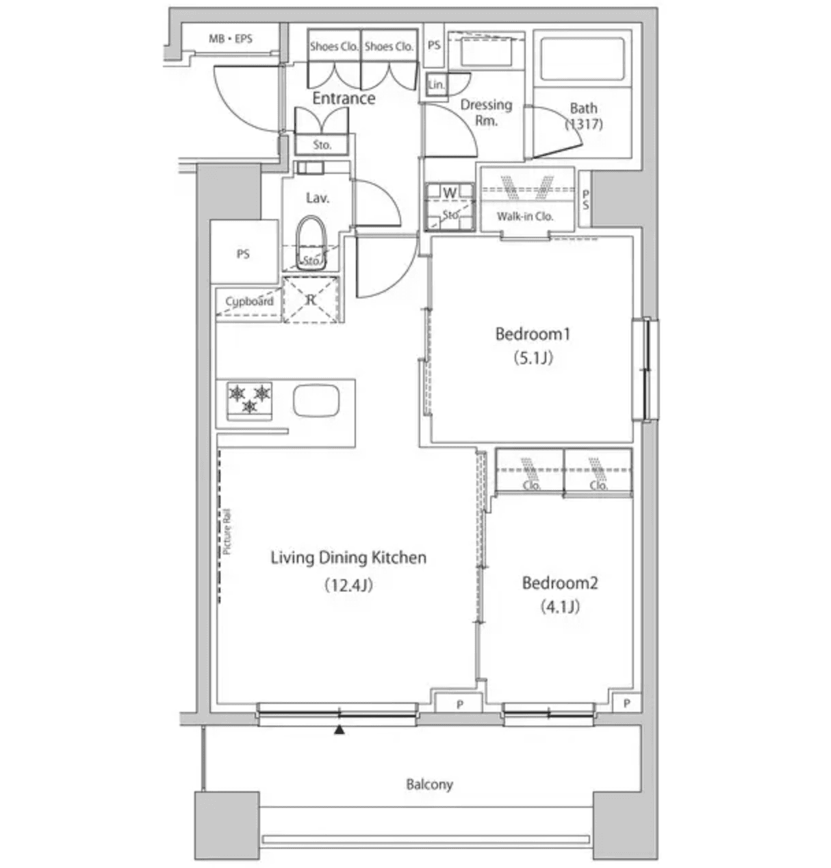
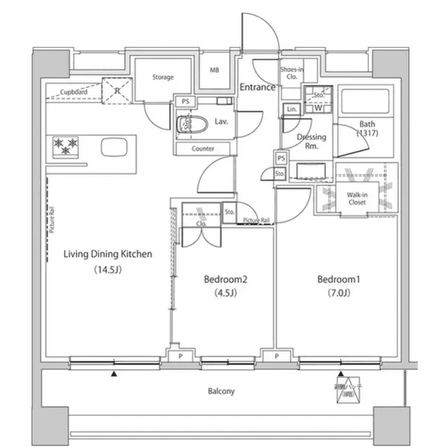
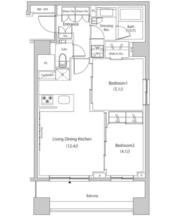
Welcome to unit 408 at The Park Habio Meguro Place, a beautifully designed 2LDK condo that spans 60.16 square meters. Located on the fourth floor, this inviting space features a thoughtful layout that seamlessly blends comfort and functionality. The modern system kitchen, equipped with a gas stove and reheating function, is perfect for culinary enthusiasts. Enjoy the convenience of a separate washbasin and a bathroom with a dryer and shower, ensuring a smooth daily routine. The walk-in closet and additional storage options provide ample space for your belongings. Step out onto your private balcony to savor fresh air, while amenities like air-conditioning and fiber-optic internet enhance your living experience. With an auto-lock system and security cameras, peace of mind is assured. Situated just a 5-minute walk from Meguro Station on the Yamanote Line, commuting is effortless. The nearby Fudoumae Station adds to your connectivity. Experience the perfect blend of comfort and convenie...
Listed by Tokyo Portfolio • Acting as intermediary
Listing updated: 2026-04-27
Around This Property
Meguro
5 min walk
Yamanote
Fudo-mae
14 min walk
- Meguro
Floor Plans & Monthly Fees

¥390,000
Priceper month
Including management fee (¥30,000)¥30,000
•
Insurance (¥0)
2
Beds
1
Baths
52.77
m²
*This is just a guide and may not accurately reflect what the total upfront fees will be. Some management companies will have other unique fees not accounted for here. We will always explain the full breakdown of upfront costs.
**If you have pets and this is a pet friendly property, expect to pay at least one additional month in security deposit.

More Units in This Building

The Park Habio Meguro Place
2025
Built
2
Units available
This property is listed by Tokyo Portfolio.
Phone: +81 (0)3-5447-8700
Address: 5-15-12 Minami-azabu, Minato-ku, Tokyo
License number: Governor of Tokyo License (1) No. 107013 / Member of the Ibaraki Prefecture Chapter of the All Japan Real Estate Association / Member of the Tokyo Metropolitan Area Real Estate Fair Trading Council













