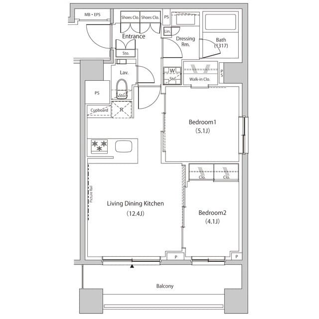
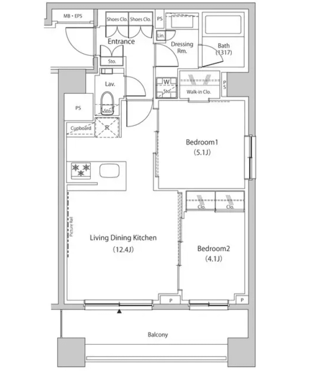
Welcome to unit 806 at The Park Habio Meguro Place, a beautifully designed 2LDK condo that spans 60.16 square meters on the eighth floor. This inviting space features a thoughtful layout that seamlessly blends comfort and functionality, making it ideal for modern living. The system kitchen, equipped with a two-burner stove and a reheating function, invites culinary creativity. Enjoy the convenience of a separate washbasin and a bathroom with a dryer and shower, ensuring your daily routines are effortless. The walk-in closet offers ample storage, while the air conditioning and lighting fixtures create a cozy atmosphere throughout. Step out onto your private balcony to savor fresh air and city views. With amenities like a delivery box, auto-lock security, and fiber-optic internet, this unit supports a lifestyle of ease and connectivity. Located just a 5-minute walk from Meguro Station, commuting is a breeze, while the nearby Fudoumae Station adds further convenience. Experience the per...
Listed by Tokyo Portfolio • Acting as intermediary
Listing updated: 2026-04-27
Around This Property
Meguro
5 min walk
Yamanote
Fudo-mae
14 min walk
- Meguro
Floor Plans & Monthly Fees

¥420,000
Priceper month
Including management fee (¥30,000)¥30,000
•
Insurance (¥0)
2
Beds
1
Baths
52.77
m²
*This is just a guide and may not accurately reflect what the total upfront fees will be. Some management companies will have other unique fees not accounted for here. We will always explain the full breakdown of upfront costs.
**If you have pets and this is a pet friendly property, expect to pay at least one additional month in security deposit.

More Units in This Building

The Park Habio Meguro Place
2025
Built
2
Units available
This property is listed by Tokyo Portfolio.
Phone: +81 (0)3-5447-8700
Address: 5-15-12 Minami-azabu, Minato-ku, Tokyo
License number: Governor of Tokyo License (1) No. 107013 / Member of the Ibaraki Prefecture Chapter of the All Japan Real Estate Association / Member of the Tokyo Metropolitan Area Real Estate Fair Trading Council













