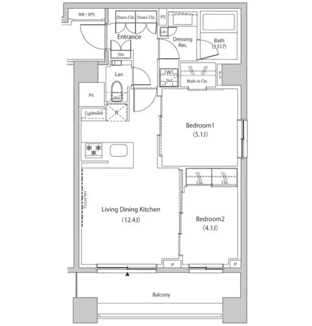
Welcome to unit 705 at The Park Habio Meguro Place, a beautifully designed 2LDK condo that spans 60.16 square meters. Located on the seventh floor, this inviting space features a thoughtful layout that seamlessly blends comfort and functionality. Step into a modern living area enhanced by a system kitchen equipped with a two-burner stove and a convenient reheating function. The indoor washing machine space and separate washbasin add practicality to your daily routine. Enjoy the luxury of a walk-in closet and a separate bathroom with a bidet toilet, ensuring a private retreat. The unit also boasts a balcony, perfect for enjoying fresh air, while air conditioning and stylish lighting create a cozy atmosphere throughout. With amenities like a delivery box and security cameras, your peace of mind is prioritized. Conveniently located just a 5-minute walk from Meguro Station on the Yamanote Line, and a short stroll to Fudoumae Station, commuting is effortless. Experience the perfect blend...
Listed by Tokyo Portfolio • Acting as intermediary
Listing updated: 2026-04-27
Around This Property
Meguro
5 min walk
Yamanote
Fudo-mae
14 min walk
- Meguro
Floor Plans & Monthly Fees

¥450,000
Priceper month
Including management fee (¥30,000)¥30,000
•
Insurance (¥0)
2
Beds
1
Baths
60.16
m²
*This is just a guide and may not accurately reflect what the total upfront fees will be. Some management companies will have other unique fees not accounted for here. We will always explain the full breakdown of upfront costs.
**If you have pets and this is a pet friendly property, expect to pay at least one additional month in security deposit.

More Units in This Building

The Park Habio Meguro Place
2025
Built
2
Units available
This property is listed by Tokyo Portfolio.
Phone: +81 (0)3-5447-8700
Address: 5-15-12 Minami-azabu, Minato-ku, Tokyo
License number: Governor of Tokyo License (1) No. 107013 / Member of the Ibaraki Prefecture Chapter of the All Japan Real Estate Association / Member of the Tokyo Metropolitan Area Real Estate Fair Trading Council













