




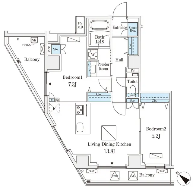
Discover refined urban living at Opus Residence Minami-Aoyama, a contemporary 2LDK spanning 62.81㎡, designed for comfort and style. The open-plan living area invites natural light, while modern amenities, including a fully equipped kitchen, climate control, and smart storage solutions, enhance everyday convenience. A private balcony offers a serene retreat to enjoy quiet mornings or evening reflections. Nestled near Gaiemmae Station, this distinguished neighborhood combines tranquil streets with cosmopolitan appeal. Surrounded by chic cafés, boutique galleries, and tree-lined avenues, it attracts professionals, couples, and small families seeking a peaceful yet connected lifestyle. Here, city sophistication meets calm, elegant living.
Listed by Tokyo Portfolio • Acting as intermediary
Listing updated: 2025-09-25
Around This Property
Gaiemmae
7 min walk
- Ginza
Omote-sando
11 min walk
- Ginza
Nogizaka
18 min walk
- Chiyoda
Floor Plans & Monthly Fees

¥475,000
Priceper month
Including management fee (-)¥0
•
Insurance (¥0)
2
Beds
1
Baths
62.81
m²

More Units in This Building

Opus Residence Minami-Aoyama
2024
Built
1
Units on sale
This property is listed by Tokyo Portfolio.
Phone: +81 (0)3-5447-8700
Address: 5-15-12 Minami-azabu, Minato-ku, Tokyo
License number: Governor of Tokyo License (1) No. 107013 / Member of the Ibaraki Prefecture Chapter of the All Japan Real Estate Association / Member of the Tokyo Metropolitan Area Real Estate Fair Trading Council


























