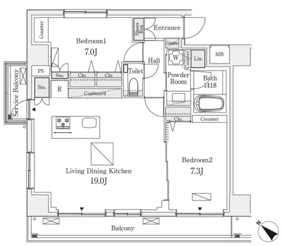
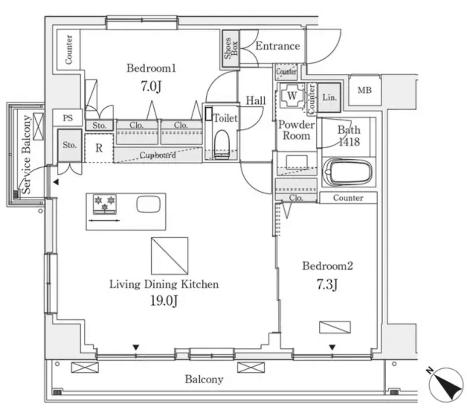
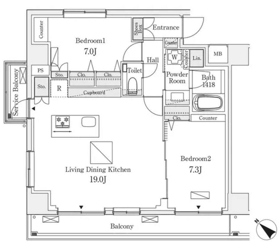
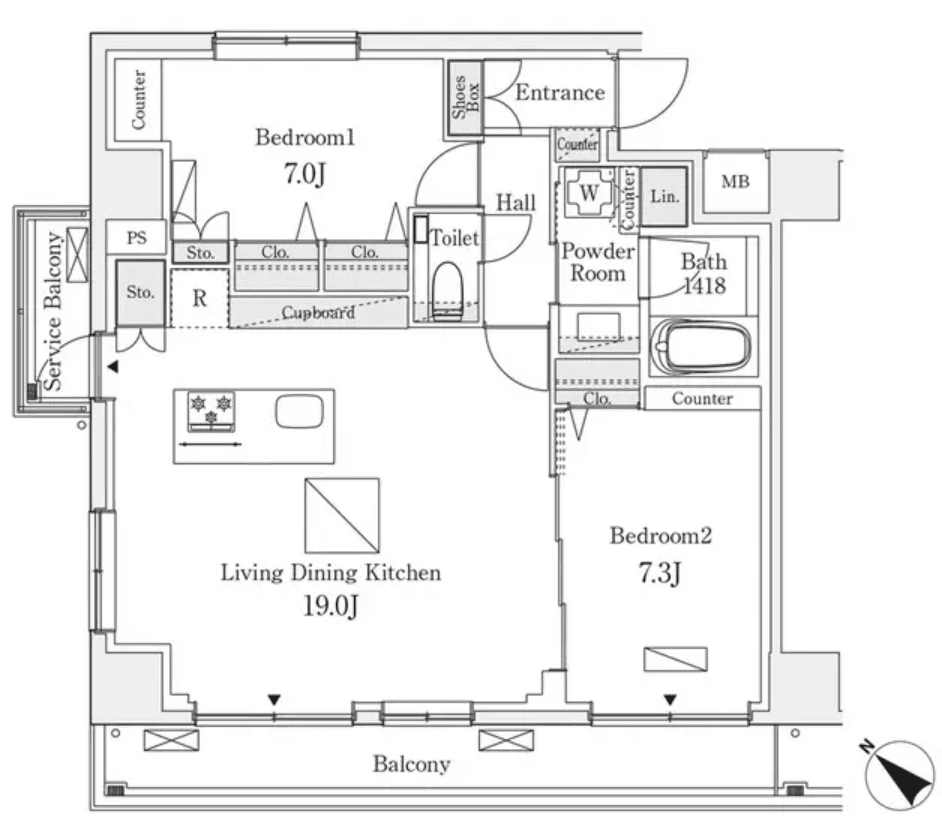
Welcome to Opus Residence Minami-Aoyama, where comfort meets functionality in unit 304. This spacious 2LDK condo spans 71.41 square meters, thoughtfully designed to enhance your daily life. The open layout seamlessly connects the living, dining, and kitchen areas, creating an inviting atmosphere for relaxation and entertaining. Enjoy modern amenities such as a system kitchen equipped with a dishwasher and reheating function, ensuring meal prep is a breeze. The separate washbasin and bathroom dryer add convenience to your routine, while the indoor washing machine space keeps everything organized. Step out onto your private balcony to savor fresh air, or take advantage of the building's concierge services for added ease. With air-conditioning and floor heating, comfort is guaranteed year-round. Located just a short walk from Gaiemmae and Omote-sando stations, commuting is effortless, allowing you to embrace the vibrant lifestyle of the city. Experience the perfect blend of style and...
Listed by Tokyo Portfolio • Acting as intermediary
Listing updated: 2026-02-19
Around This Property
Gaiemmae
7 min walk
- Ginza
Omote-sando
11 min walk
- Ginza
Nogizaka
18 min walk
- Chiyoda
Floor Plans & Monthly Fees

¥560,000
Priceper month
Including management fee (¥20,000)¥20,000
•
Insurance (¥0)
2
Beds
1
Baths
71.41
m²
*This is just a guide and may not accurately reflect what the total upfront fees will be. Some management companies will have other unique fees not accounted for here. We will always explain the full breakdown of upfront costs.
**If you have pets and this is a pet friendly property, expect to pay at least one additional month in security deposit.

More Units in This Building

Opus Residence Minami-Aoyama
2024
Built
3
Units available
This property is listed by Tokyo Portfolio.
Phone: +81 (0)3-5447-8700
Address: 5-15-12 Minami-azabu, Minato-ku, Tokyo
License number: Governor of Tokyo License (1) No. 107013 / Member of the Ibaraki Prefecture Chapter of the All Japan Real Estate Association / Member of the Tokyo Metropolitan Area Real Estate Fair Trading Council











