High above the city on the 11th floor of Park Cube Nemiya-yama Tower, this bright 68.57 m² 3LDK residence opens into a sleek, contemporary living space that feels both efficient and uplifting. Clean lines, thoughtful room distribution, and a generous balcony create a home designed for modern urban rhythms—morning light, quiet evenings, and effortless daily flow. Step outside and Nemiya-yama surrounds you with a calm, residential pocket known for its leafy slopes, intimate cafés, and refined low-rise streets. Popular with young professionals and families who value safety, convenience, and quick access to central hubs, the area blends tranquility with walkable charm. An elevated retreat where comfort meets city sophistication.
Listed by Tokyo Portfolio • Acting as intermediary
Listing updated: 2025-11-17
Around This Property
Onarimon
6 min walk
- Mita
Kamiyacho
7 min walk
- Hibiya
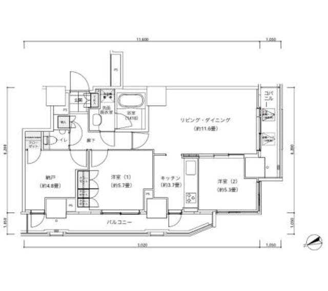
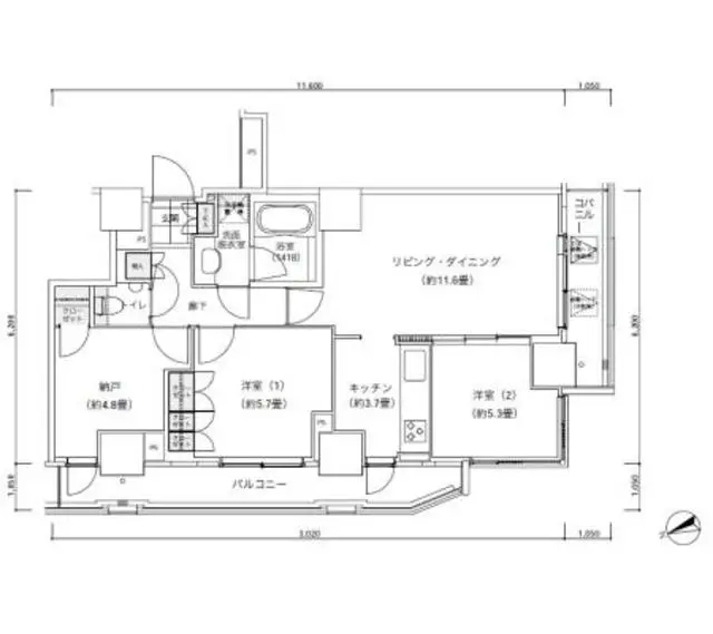
Floorplan


Monthly Fees
¥510,000
Priceper month
Including management fee (¥0)¥0
•
Insurance (¥0)
3
Beds
1
Baths
68.57
m²
*This is just a guide and may not accurately reflect what the total upfront fees will be. Some management companies will have other unique fees not accounted for here. We will always explain the full breakdown of upfront costs.
**If you have pets and this is a pet friendly property, expect to pay at least one additional month in security deposit.
More Units in This Building
This property is listed by Tokyo Portfolio.
Phone: +81 (0)3-5447-8700
Address: 5-15-12 Minami-azabu, Minato-ku, Tokyo
License number: Governor of Tokyo License (1) No. 107013 / Member of the Ibaraki Prefecture Chapter of the All Japan Real Estate Association / Member of the Tokyo Metropolitan Area Real Estate Fair Trading Council


















