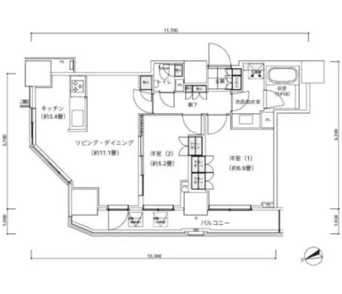
Welcome to unit 401 at Park Cube Atagoyama Tower, a beautifully designed 2LDK condo that spans 60.92 square meters. This fourth-floor residence offers a seamless blend of comfort and functionality, perfect for modern living. Step into an inviting layout featuring a spacious living area that flows effortlessly into a well-equipped system kitchen, complete with a dishwasher and reheating function. The separate washbasin and bathroom-dryer enhance daily routines, while the indoor washing machine space adds convenience. Enjoy your morning coffee on the balcony, or unwind in the air-conditioned comfort of your home. With amenities like a concierge, auto-lock system, and garbage collection, every detail is catered to for a hassle-free lifestyle. Located just a short walk from Onarimon and Kamiyacho stations, commuting is a breeze, allowing you to explore the vibrant city with ease. Experience the perfect blend of luxury and practicality in this exceptional apartment.
Listed by Tokyo Portfolio • Acting as intermediary
Listing updated: 2026-03-12
Around This Property
Onarimon
6 min walk
- Mita
Kamiyacho
7 min walk
- Hibiya
Floor Plans & Monthly Fees

¥385,000
Priceper month
Including management fee (¥0)¥0
•
Insurance (¥0)
2
Beds
1
Baths
60.92
m²
*This is just a guide and may not accurately reflect what the total upfront fees will be. Some management companies will have other unique fees not accounted for here. We will always explain the full breakdown of upfront costs.
**If you have pets and this is a pet friendly property, expect to pay at least one additional month in security deposit.

More Units in This Building

Park Cube Atagoyama Tower
2007
Built
6
Units available
This property is listed by Tokyo Portfolio.
Phone: +81 (0)3-5447-8700
Address: 5-15-12 Minami-azabu, Minato-ku, Tokyo
License number: Governor of Tokyo License (1) No. 107013 / Member of the Ibaraki Prefecture Chapter of the All Japan Real Estate Association / Member of the Tokyo Metropolitan Area Real Estate Fair Trading Council
















