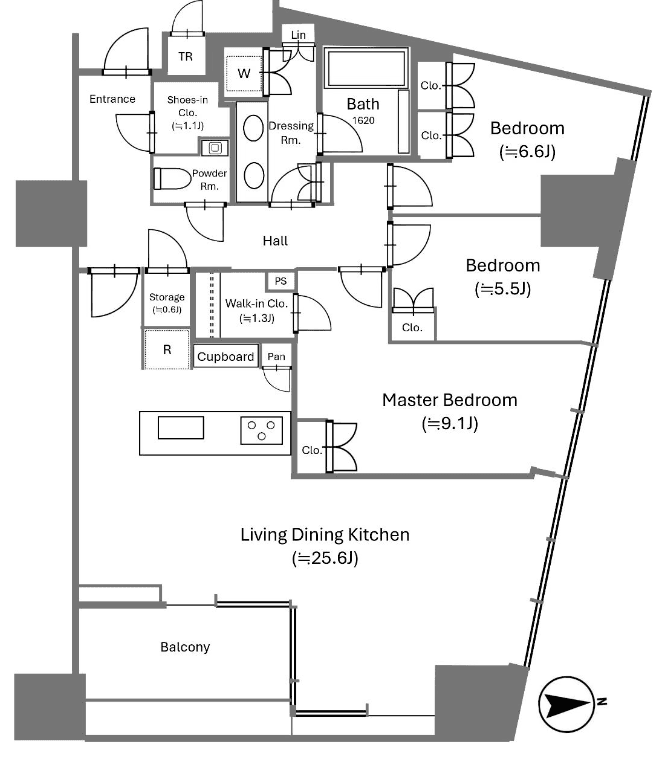
Welcome to unit 917 at Mita Garden Hills EAST HILL, a spacious 3LDK condo that perfectly balances comfort and functionality. Spanning 108.36 square meters, this ninth-floor residence features a well-designed layout that includes a walk-in closet, storage, and a tranquil balcony, ideal for enjoying morning coffee or evening relaxation. The open living area invites natural light, creating a warm atmosphere for both entertaining and everyday living. Each room is thoughtfully positioned to enhance privacy while maintaining a sense of connection throughout the space. With convenient access to multiple train lines, including Namboku and Oedo, commuting is effortless. The building also offers amenities such as car parking, concierge services, and a pet-friendly environment, making it a perfect choice for modern urban living. Experience the comfort and convenience of this exceptional home.
Listed by Tokyo Portfolio • Acting as intermediary
Listing updated: 2026-04-23
Around This Property
Azabu-juban
7 min walk
- Oedo
- Namboku
Shibakoen
11 min walk
- Mita
The British School Tokyo (Azabudai Hills)
Ages 3-18 years | By Car 6 mins
Floorplan


Payment Calculator
Property Price
Interest rate
The average interest rate for a 35-year fixed loan is 1.368%, while the average variable interest rate is 0.470%.
Loan term
Down payment (20%)¥0
Estimated closing fees (5-8%)
¥49,900,000 – ¥79,840,000
↳ Commission (3.3%) + ¥66,000¥33,000,000
TOTAL DUE AT CLOSE
¥49,900,000 – ¥79,840,000| Down payment (20%) | ¥0 |
| Estimated closing fees (5-8%) ↳ Commission (3.3%) + ¥66,000 | ¥49,900,000 – ¥79,840,000 ¥33,000,000 |
| TOTAL DUE AT CLOSE | ¥49,900,000 – ¥79,840,000 |
|---|
As some of these numbers are calculated using the government-assessed value of the property, the actual total upfront cost cannot be known. Generally speaking, we recommend clients prepare an additional 5–8% on top of the list price.
See here for more details
More Units in This Building

Mita Garden Hills
2025
Built
44
Units available

Unit
Park Mansion 4081 Bed • 2 Bath
¥1,290,000Price

Unit
EAST HILL 141 Bed • 2 Bath
¥1,280,000,000Price

Unit
North Hill 10191 Bed • 2 Bath
¥1,000,000Price

Unit
East Hill 13051 Bed • 2 Bath
¥1,175,000Price

Unit
Park Mansion 6F1 Bed • 2 Bath
¥1,600,000,000Price

Unit
North Hill 8061 Bed • 2 Bath
¥1,700,000Price

Unit
south hill 81 Bed • 3 Bath
¥920,000,000Price

Unit
South Hill 13121 Bed • 2 Bath
¥690,000Price

Unit
North Hill 13F1 Bed • 2 Bath
¥698,000,000Price

Unit
EAST HILL 41 Bed • 3 Bath
¥854,280,000Price

Unit
EAST HILL 8F1 Bed • 3 Bath
¥692,160,000Price

Unit
South Hill 4101 Bed • 3 Bath
¥950,000Price

Unit
North Hill 6031 Bed • 2 Bath
¥680,000Price

Unit
East hill 101 Bed • 3 Bath
¥545,000,000Price

Unit
South Hill 13101 Bed • 3 Bath
¥1,100,000Price

Unit
East Hill 3141 Bed • 2 Bath
¥750,000Price

Unit
North Hill 13021 Bed • 2 Bath
¥880,000Price

Unit
North Hill 3031 Bed • 2 Bath
¥850,000Price

Unit
North Hill 4031 Bed • 2 Bath
¥650,000Price

Unit
East Hill 9081 Bed • 2 Bath
¥660,000Price

Unit
East Hill 10081 Bed • 2 Bath
¥650,000Price

Unit
North Hill 12151 Bed • 1 Bath
¥400,000Price

Unit
South Hill 8101 Bed • 3 Bath
¥1,100,000Price

Unit
13131 Bed • 2 Bath
¥720,000Price

Unit
East Hill 101 Bed • 2 Bath
¥408,800,000Price

Unit
Park Mansion 81 Bed • 2 Bath
¥1,198,000,000Price

Unit
Park Mansion 111.5 Bed • 3 Bath
¥1,758,000,000Price

Unit
Park Mansion 8-11 Bed • 3 Bath
¥1,340,000,000Price

Unit
13F1 Bed • 2 Bath
¥698,000,000Price

Unit
Park Mansion 8011 Bed • 3 Bath
¥950,000,000Price

Unit
South Hills 11081 Bed • 2 Bath
¥890,000,000Price

Unit
North Hill 8F1 Bed • 2 Bath
¥598,000,000Price

Unit
East Hill 1061 Bed • 2 Bath
¥330,000,000Price

Unit
North Hill 13131 Bed • 1 Bath
¥160,000,000Price

Unit
West Hill 4061 Bed • 2 Bath
¥360,000,000Price

Unit
East Hill 14131 Bed • 3 Bath
¥1,730,000,000Price

Unit
North Hill 6F1 Bed • 3 Bath
¥755,000,000Price

Unit
13141 Bed • 3 Bath
¥880,000Price

Unit
East Building 13F1 Bed • 2 Bath
¥698,000,000Price

Unit
West Hill 2091 Bed • 2 Bath
¥480,000,000Price

Unit
East Hills 6131 Bed • 2 Bath
¥618,000,000Price

Unit
5091 Bed • 2 Bath
¥1,100,000Price

Unit
13111 Bed • 2 Bath
¥850,000,000Price

Unit
10041 Bed • 3 Bath
¥850,000,000Price
This property is listed by Tokyo Portfolio.
Phone: +81 (0)3-5447-8700
Address: 5-15-12 Minami-azabu, Minato-ku, Tokyo
License number: Governor of Tokyo License (1) No. 107013 / Member of the Ibaraki Prefecture Chapter of the All Japan Real Estate Association / Member of the Tokyo Metropolitan Area Real Estate Fair Trading Council
























