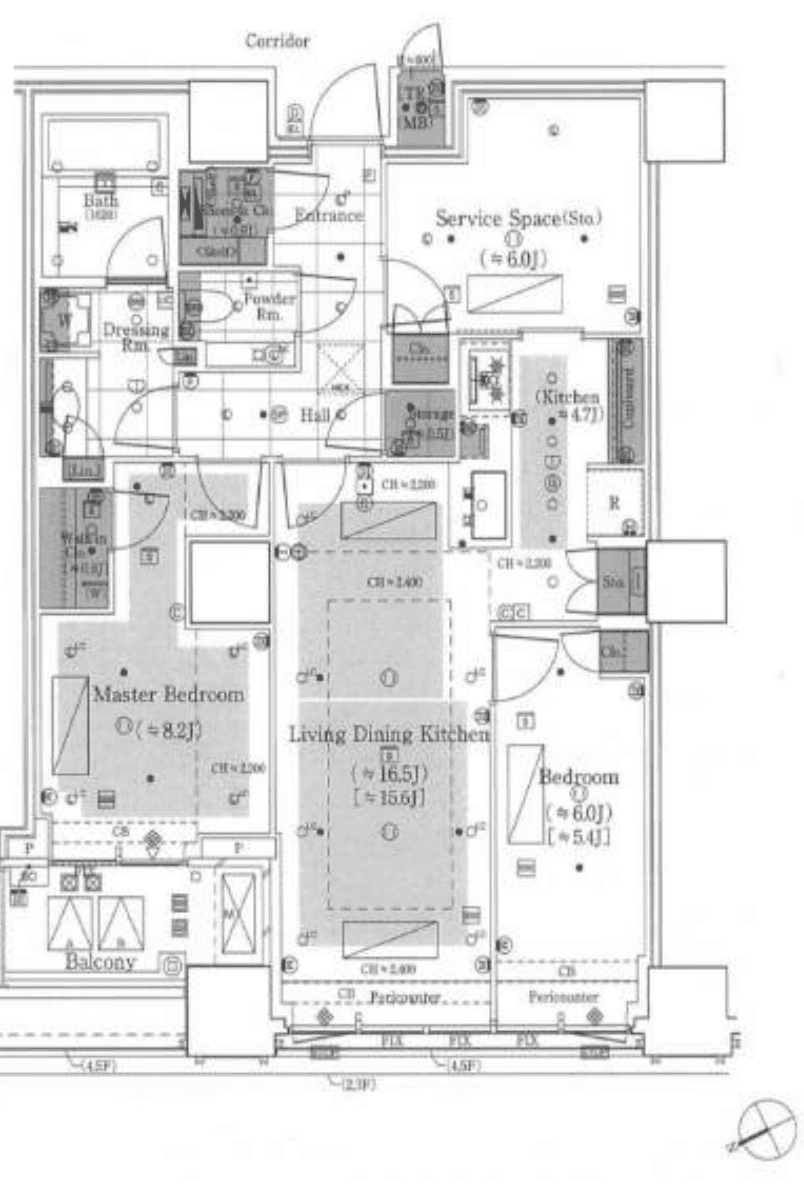
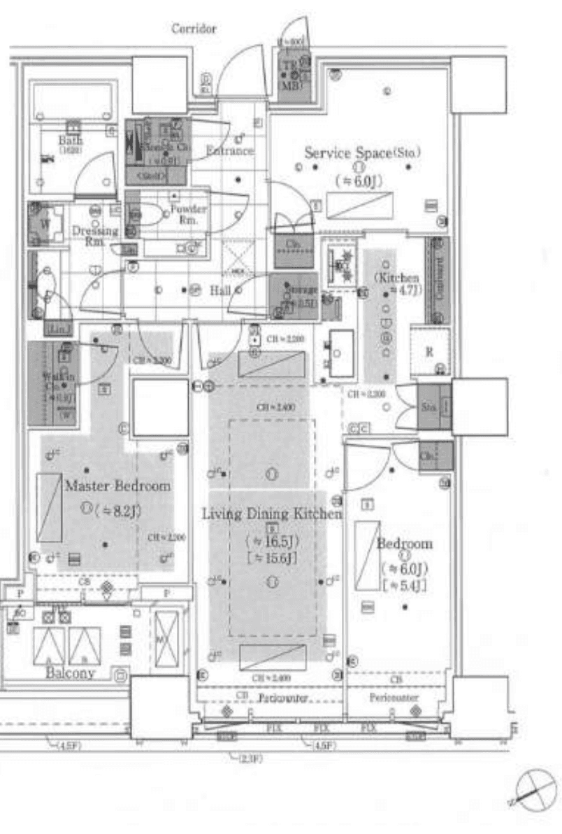
Welcome to unit 2 at Mita Garden Hills West Hill, a beautifully designed 2LDK condo that spans 83.96 square meters. This second-floor residence offers a seamless blend of comfort and functionality, perfect for modern living. Step inside to discover a spacious layout featuring a system kitchen equipped with a dishwasher and water purifier, making meal prep a delight. The floor heating ensures warmth during chilly days, while the bathroom dryer adds an extra touch of convenience. Enjoy the luxury of a balcony, perfect for morning coffee or evening relaxation. With easy access to Azabu-Juban station, just a 7-minute walk away, commuting is a breeze. Experience the perfect balance of comfort and accessibility in this inviting home.
Listed by Tokyo Portfolio • Acting as intermediary
Listing updated: 2026-04-17
Around This Property
Azabu-juban
7 min walk
- Oedo
- Namboku
Shibakoen
11 min walk
- Mita
The British School Tokyo (Azabudai Hills)
Ages 3-18 years | By Car 6 mins
Floorplan


Payment Calculator
Property Price
Interest rate
The average interest rate for a 35-year fixed loan is 1.368%, while the average variable interest rate is 0.470%.
Loan term
Down payment (20%)¥0
Estimated closing fees (5-8%)
¥24,000,000 – ¥38,400,000
↳ Commission (3.3%) + ¥66,000¥15,906,000
TOTAL DUE AT CLOSE
¥24,000,000 – ¥38,400,000| Down payment (20%) | ¥0 |
| Estimated closing fees (5-8%) ↳ Commission (3.3%) + ¥66,000 | ¥24,000,000 – ¥38,400,000 ¥15,906,000 |
| TOTAL DUE AT CLOSE | ¥24,000,000 – ¥38,400,000 |
|---|
As some of these numbers are calculated using the government-assessed value of the property, the actual total upfront cost cannot be known. Generally speaking, we recommend clients prepare an additional 5–8% on top of the list price.
See here for more details
More Units in This Building

Mita Garden Hills
2025
Built
44
Units available

Unit
Park Mansion 4081 Bed • 2 Bath
¥1,290,000Price

Unit
EAST HILL 141 Bed • 2 Bath
¥1,280,000,000Price

Unit
North Hill 10191 Bed • 2 Bath
¥1,000,000Price

Unit
East Hill 13051 Bed • 2 Bath
¥1,175,000Price

Unit
Park Mansion 6F1 Bed • 2 Bath
¥1,600,000,000Price

Unit
North Hill 8061 Bed • 2 Bath
¥1,700,000Price

Unit
south hill 81 Bed • 3 Bath
¥920,000,000Price

Unit
South Hill 13121 Bed • 2 Bath
¥690,000Price

Unit
North Hill 13F1 Bed • 2 Bath
¥698,000,000Price

Unit
EAST HILL 41 Bed • 3 Bath
¥854,280,000Price

Unit
EAST HILL 8F1 Bed • 3 Bath
¥692,160,000Price

Unit
South Hill 4101 Bed • 3 Bath
¥950,000Price

Unit
North Hill 6031 Bed • 2 Bath
¥680,000Price

Unit
East hill 101 Bed • 3 Bath
¥545,000,000Price

Unit
South Hill 13101 Bed • 3 Bath
¥1,100,000Price

Unit
East Hill 3141 Bed • 2 Bath
¥750,000Price

Unit
North Hill 13021 Bed • 2 Bath
¥880,000Price

Unit
North Hill 3031 Bed • 2 Bath
¥850,000Price

Unit
North Hill 4031 Bed • 2 Bath
¥650,000Price

Unit
East Hill 9081 Bed • 2 Bath
¥660,000Price

Unit
East Hill 10081 Bed • 2 Bath
¥650,000Price

Unit
North Hill 12151 Bed • 1 Bath
¥400,000Price

Unit
South Hill 8101 Bed • 3 Bath
¥1,100,000Price

Unit
13131 Bed • 2 Bath
¥720,000Price

Unit
East Hill 101 Bed • 2 Bath
¥408,800,000Price

Unit
Park Mansion 81 Bed • 2 Bath
¥1,198,000,000Price

Unit
Park Mansion 111.5 Bed • 3 Bath
¥1,758,000,000Price

Unit
Park Mansion 8-11 Bed • 3 Bath
¥1,340,000,000Price

Unit
13F1 Bed • 2 Bath
¥698,000,000Price

Unit
Park Mansion 8011 Bed • 3 Bath
¥950,000,000Price

Unit
South Hills 11081 Bed • 2 Bath
¥890,000,000Price

Unit
North Hill 8F1 Bed • 2 Bath
¥598,000,000Price

Unit
East Hill 1061 Bed • 2 Bath
¥330,000,000Price

Unit
North Hill 13131 Bed • 1 Bath
¥160,000,000Price

Unit
West Hill 4061 Bed • 2 Bath
¥360,000,000Price

Unit
East Hill 14131 Bed • 3 Bath
¥1,730,000,000Price

Unit
North Hill 6F1 Bed • 3 Bath
¥755,000,000Price

Unit
13141 Bed • 3 Bath
¥880,000Price

Unit
East Building 13F1 Bed • 2 Bath
¥698,000,000Price

Unit
East Hills 6131 Bed • 2 Bath
¥618,000,000Price

Unit
East Hill 9171 Bed • 3 Bath
¥998,000,000Price

Unit
5091 Bed • 2 Bath
¥1,100,000Price

Unit
13111 Bed • 2 Bath
¥850,000,000Price

Unit
10041 Bed • 3 Bath
¥850,000,000Price
This property is listed by Tokyo Portfolio.
Phone: +81 (0)3-5447-8700
Address: 5-15-12 Minami-azabu, Minato-ku, Tokyo
License number: Governor of Tokyo License (1) No. 107013 / Member of the Ibaraki Prefecture Chapter of the All Japan Real Estate Association / Member of the Tokyo Metropolitan Area Real Estate Fair Trading Council





















